Aktuálně můžete v lokalitě Praha vybírat z nabídky 313 domů.
Přehled nemovitostí: prodej domy > vícegenerační domy Zpět na přehled nabídek

Exkluzivní investiční příležitost v Praze 6 Lysolaje, Praha

3 019 m2

neuvedeno

G - Mimořádně nehospodárná

30

27.03.2026

Cena: 36000000 CZK / objekt

Poslat dotaz k nabídce
Zásady používání osobních údajů

Prodejce

Makléř: Bok Tomáš

Telefon: 777 839 ...

E-mail: info@1- ...

Zobrazit celý kontakt

Nemovitost nabízí

1. Česká správní s.r.o.

Prvomájová 161/13, Praha 5

www.1-cs.cz

Zobrazit kontakt na RK

Zobrazit všechny nabídky RK

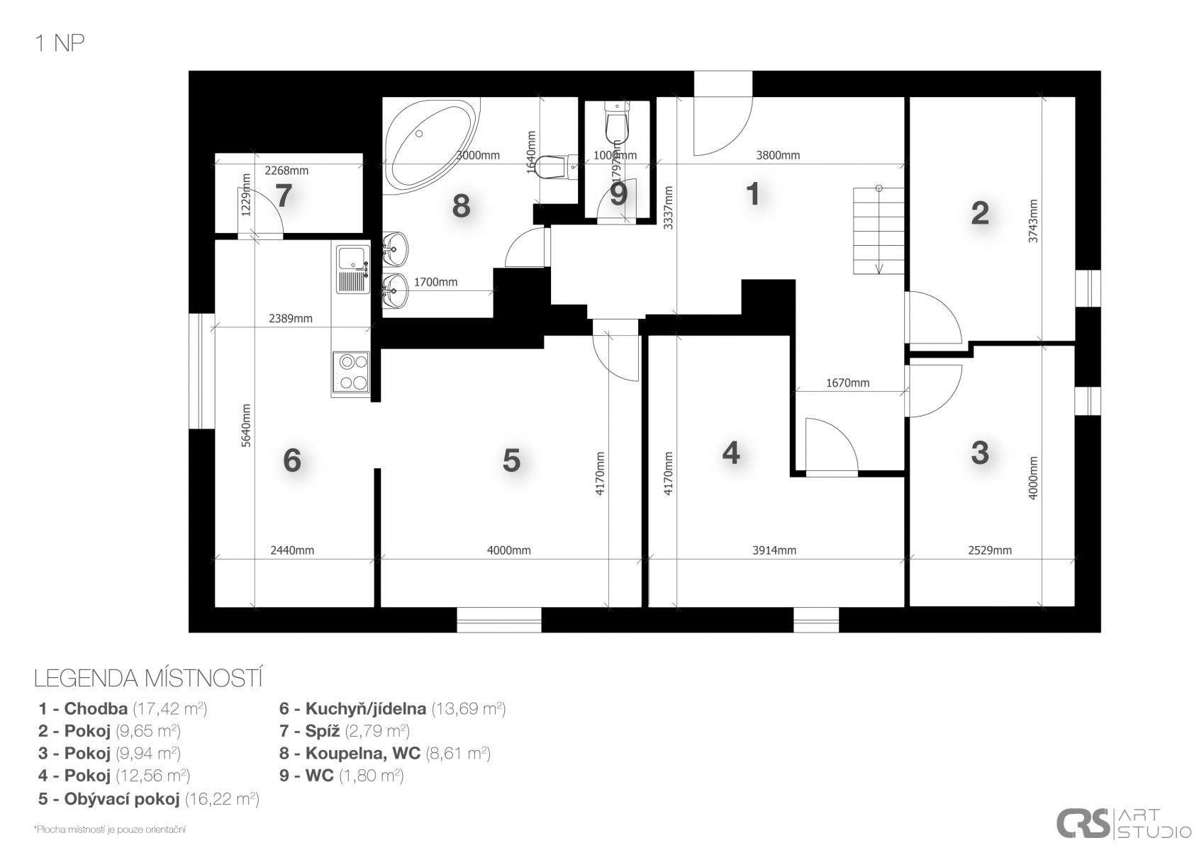
Exkluzivní investiční příležitost v Praze 6 Lysolaje Rodinný dům se 3 bytovými jednotkami + rozvojový potenciál Nabízíme k prodeji atraktivní nemovitost v jedné z nejžádanějších a klidných lokalit Prahy 6 Lysolaje. Jedná se o rodinný dům rozdělený na 3 bytové jednotky, který stojí na pozemku o celkové výměře cca 3 019 m² (z toho zahrada cca 2 714 m²) . Nemovitost představuje ideální kombinaci okamžitého využití a dlouhodobého developerského potenciálu. Klíčové přednosti nemovitosti: 3 samostatné bytové jednotky vhodné pro nájemní bydlení či vícegenerační užívání Částečná rekonstrukce (přízemí a podkroví), zbytek v původním stavu možnost realizace dle vlastních představ Rozlehlý pozemek se zahradou poskytující soukromí i další využití Výjimečná lokalita klid, zeleň, zároveň výborná dostupnost centra Prahy Developerský potenciál: Pozemek umožňuje realizaci nového stavebního záměru o velikosti cca 7 až 8 bytových jednotek, v závislosti na zvoleném architektonickém řešení. Projekt je nutné přizpůsobit: konfiguraci a svažitosti terénu požadavkům na parkovací kapacity regulativům územního plánování Ideální příležitost pro investora nebo developera hledajícího projekt v prémiové lokalitě s omezenou nabídkou. Nabídková cena: 36 000 000 Kč Lokalita Lysolaje, Praha 6 Vyhledávaná rezidenční čtvrť s venkovským charakterem, množstvím zeleně a rychlou dostupností do centra i na letiště. Oblast nabízí kombinaci klidu, prestiže a dlouhodobě stabilní hodnoty nemovitostí. <a href="https://www.eurobydleni.cz/byty/3_kk/brno/obec-komin/prodej/"><strong>Prodej bytu 3+kk Brno-město, Komín</strong></a>




Prodej vícegeneračního domu Praha 6, Lysolaje na Eurobydleni.cz


Nahoru