Makléř: Mgr. Vaněk Dušan
Telefon: 607 000 ...
E-mail: dreampr ...
Zobrazit celý kontaktTelefon: 607 000 021
E-mail: dreampraha@century21.cz
Nemovitost nabízí
CENTURY 21 Dream
Radlická 759/32, 120 00 Praha 2
www.century21.cz/kancelar-dream-247
Zobrazit kontakt na RK
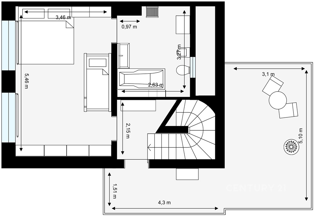
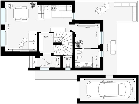
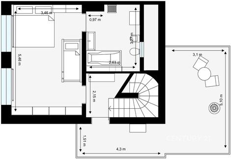
Rádi bychom Vám nabídli ke koupi řadový dům se zahradou a garáží o dispozici 3+kk o obytné ploše 87 m2 a s pozemkem 225 m2. Po vstupu do domu projdete předsíní a chodbou do prostorného obývacího pokoje s kuchyňským koutem. Odtud můžete dále pokračovat do dalšího pokoje a spodní koupelny nebo vyjít na zahradu. Po schodech se dostanete do druhého podlaží, ve kterém se nachází ložnice, druhá koupelna a terasa. Součástí domu je sklep a další terasa orientovaná do zahrady, která poskytuje příjemné soukromí. Dům je napojen na plyn, elektřinu, vodu i kanalizaci. K dispozici je také společná studna pro zalévání. Topení a ohřev teplé vodu je zabezpečeno plynovým kotlem. Zásadní přidanou hodnotou je kompletně připravená projektová dokumentace pro rozšíření na větší rodinný dům. Stavební povolení je těsně před vydáním. To znamená výraznou úsporu času a možnost rozšířit obytnou plochu na více než 121 m2 s dispozicí 4+kk bez zbytečných administrativních průtahů. Nedaleko od domu se nachází Chaberský háj, který můžete využít pro procházky v přírodě i sportování. Autobusová zastávka téměř u domu zajišťuje spojení na metro přibližně za 5 minut. Jednu zastávku odtud začínají tramvajové linky 17 a 24 s přímým spojením do centra. Autem se bez problémů dostanete jak do centra Prahy tak i na dálniční síť. Pokud vás zaujala samotná nemovitost a projekt jejího budoucího rozšíření, rád Vás pozvu na její prohlídku.
Prodej rodinného domu, 269 m2, Praha, ul. Kamencová
Nadstandardní rodinný dům 5+kk v klidné a vyhledávané části Prahy 9 - Hostavice, jen pár kroků od Přírodní rezervace V pískovně. V přízemí vás uvítá…
Prodej rodinného domu s hezkou zahradou v klidné části Prahy 9 - Běchovice.
Dovoluji si Vám nabídnout starší zachovalý rodinný dům s pěknou rovinnou zahradou v klidné a příjemné ulici pražských Běchovic. Dům je z většinové…