Makléř: Kaláb Jakub
Telefon: 725 807 ...
E-mail: jakub@k ...
Zobrazit celý kontaktTelefon: 725 807 555
E-mail: jakub@kalabreality.cz
Nemovitost nabízí
Hit Reality
Vranové 1.díl 252, Malá Skála
Zobrazit kontakt na RK
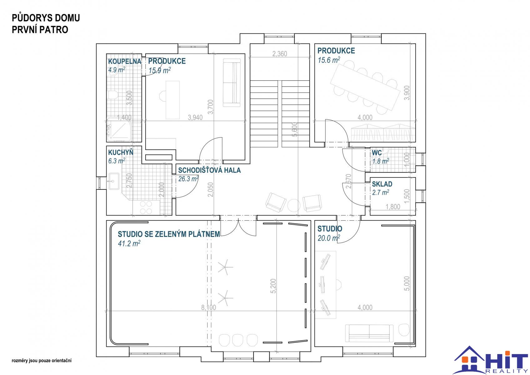
Nabízíme k prodeji výjimečný rodinný dům s velkorysou užitnou plochou, zahradou a parkováním na pozemku, situovaný v klidné vilové čtvrti Praha 4 - Lhotka. Dům se nachází v rezidenční lokalitě s vilovou zástavbou, dostatkem zeleně a velmi dobrou dostupností do centra města. V bezprostřední blízkosti se rozkládá přírodní park Velký háj a do budoucna bude lokalitu výrazně zatraktivňovat plánovaná stanice metra D Nové Dvory. Nemovitost je podsklepená, má tři nadzemní podlaží a jedno podzemní podlaží, přičemž celková plocha činí 485 m2. Dům stojí na pozemku o výměře 670 m2, jehož součástí je zahrada orientovaná do klidného vnitrobloku, nabízející dostatek soukromí i prostoru pro relaxaci. Parkování je možné přímo na pozemku. Dům je ve velmi dobrém technickém stavu, zásadní stavební úpravy proběhly v letech 2004 - 2007, zároveň však nabízí prostor pro modernizaci či úpravy dle individuálních potřeb nového majitele. Dispozice je mimořádně variabilní a umožňuje pohodlné vícegenerační bydlení, případně kombinaci bydlení s podnikáním. Jednotlivá podlaží jsou propojena centrálním schodištěm a každé patro disponuje vlastním funkčním zázemím. V současné době je dům pronajat a užíván jako sídlo společnosti, přičemž generuje pravidelný příjem. Do budoucna však nabízí široké spektrum dalšího využití podle záměru nového vlastníka. Lokalita nabízí kompletní občanskou vybavenost v pěším dosahu a výbornou dopravní dostupnost. Spojení zajišťují autobusové linky ke stanicím metra Kačerov a Želivského, přičemž plánovaná výstavba trasy metra D ještě zvýší atraktivitu celé oblasti. Nemovitost je ideální volbou pro ty, kteří hledají prostorný dům v prestižní části Prahy s dlouhodobým potenciálem. <a href="https://www.eurobydleni.cz/pozemky/stavebni-pozemek-komercni/pardubice/obec-pardubice/pronajem/"><strong>Pronájem komerčního pozemku Pardubice</strong></a>
Prodej, Rodinný dům, Praha 4
Rodinný dům v Praze 4, navržený architektem Davidem Vávrou. Soukromí, prostor a hodnota do budoucna. Tento dům není určen pro každého, je pro rodinu,…
Prodej, Rodinný dům, Praha 3
Nabízíme k prodeji novostavbu řadového domu o dispozici 5+kk a výměře 116,98 m2 + prostorný sklep 22,37 m2, zastavěná plocha 60 m2 m2 a zahrada za…
Prodej rodinného domu Praha 4, Lhotka na Eurobydleni.cz