Makléř: Mgr. Veronika Vágner
Telefon: 775 020 ...
E-mail: reality ...
Zobrazit celý kontaktTelefon: 775 020 584
E-mail: reality@veronikavagner.cz
Nemovitost nabízí
ORANGE PROPERTY s.r.o.
Kaprova 42/14, Praha
Zobrazit kontakt na RK
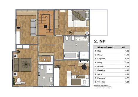
Dovolujeme si vám exkluzivně nabídnout pronájmu výjimečný rodinný dům, který potěší každého, kdo hledá moderní architekturu, promyšlené detaily a skutečný komfort rodinného bydlení. Dům se nachází v nově vzniklé rezidenční čtvrti v Praze 8 - Březiněvsi. Tento dvoupodlažní dům o dispozici 5+kk byl kolaudován v roce 2019. Celková užitná plocha 157,63 m, terasa 10 m a vzrostlá zahrada vytvářejí ideální prostor pro rodinný život. Dispozice domu: 1.NP vás přivítá elegantním zádveřím (6,92 m) a halou (5,88 m). Srdcem domu je velkorysý obývací pokoj s kuchyní a jídelnou (36,52 m). Dále zde najdete koupelnu se sprchovým koutem a toaletou, technickou místnost, sklad a garáž pro jeden automobil (18,48 m). Samozřejmostí je podlahové vytápění v celém 1. NP. 2. NP nabízí soukromí a klid: ložnici s vlastní koupelnou, sprchovým koutem a šatnou, dva dětské pokoje / pracovny, další koupelnu s vanou i sprchovým koutem, samostatnou pracovnu a centrální chodbu. Interiér domu je kompletně řešen na míru truhlářem od vestavěných skříní, přes elegantní úložné prostory v každém koutě domu až po luxusní kuchyňskou linku s moderními technologiemi a vinotékou, která potěší i náročné milovníky vaření. Vše je sjednoceno do jemných zemitých tónů, které působí klidně, harmonicky a nadčasově. Z obývacího pokoje je přímý vstup na terasu s bioklimatickou pergolou, vybavenou screenovými roletami na dálkové ovládání. Technická místnost je navržena s důrazem na praktičnost. V celém domě jsou venkovní žaluzie na dálkové ovládání a v oknech sítě proti hmyzu, vytápění zajišťuje plynový kotel. Dům má centrální zabezpečení napojené na pco. Po celém domě je dřevěná podlaha ve vysokém standardu. V zahradě je pak zahradní domek, který slouží jako další úložný prostor. Dům je připraven pro nové obyvatele a je možné se tak ihned nastěhovat. Hledáme nájemníky, kteří mají zájem o dlouhodobé bydlení a budou zde spokojeně žít. Majitelé požadují nájemné ve výši: 59.000,- Kč + zálohy na vodu. Elektřina plyn se převádí na nájemníka. Kauci ve výši: 100.000,- Kč. Provize pro rk činí jeden měsíční nájem bez energií. Březiněves patří k vyhledávaným částem Prahy 8 nabízí klidné rezidenční bydlení v zeleni, přátelskou komunitu a zároveň výbornou dostupnost do centra Prahy. V okolí najdete školky, školy, obchody, restaurace, sportovní vyžití i krásné procházky do přírody. Je to místo, kde se žije pomaleji, bezpečněji a s pocitem domova ideální pro rodinu, která chce spojit městský komfort s atmosférou menší čtvrti. Tento dům není jen o metrech čtverečních. Je o pocitu, že se večer vracíte tam, kde je klid, teplo a harmonie. Pokud hledáte výjimečný pronájem bez kompromisů, tohle je místo, které stojí za osobní prohlídku.
Pronájem rodinného domu 6+1, (471m2), Praha 4 Kunratice
Pronájem velkého rodinného domu 6+1, (471m2), velký obývací pokoj s jídelním koutem, krbem a vstupem na terasu, plně vybavená kuchyně, 5 ložnic se…
Pronájem domu s bazénem: Praha 6 - Nebušice, Nebušická
Nabízíme k pronájmu reprezentativní vilu 5+kk ve vyhledávané lokalitě v Praze 6 - Nebušice. Dům je součástí uzavřeného rezidenčního komplexu Villas…
Pronájem rodinného domu Praha 8, Březiněves na Eurobydleni.cz