Makléř: Ing. Olga Nikitina
Telefon: 739 181 ...
E-mail: Nikitin ...
Zobrazit celý kontaktTelefon: 739 181 818, 735 177 888
E-mail: Nikitina@reality18.cz
Nemovitost nabízí
Reality18
Československé armády 820/35, Praha
Zobrazit kontakt na RK739 224 180
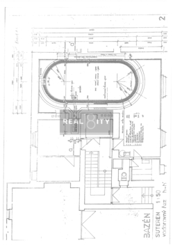
(R321) Nabízíme k prodeji prvorepublikovou, vícegenerační, samostatnou vilu z 30.let na pozemku o velikosti 985 m2 v rezidenční čtvrti Prahy 6 - Hanspaulka. Celková užitná plocha domu je cca 528 m2 Vila má jedno podzemní a 3 nadzemní podlaží. V přízemí domu se nachází vstupní hala se schodištěm, kuchyň, čtyři pokoje, koupelna, samostatná toaleta a komora. V 1. patře se nachází kuchyň, komora, 3 pokoje, zimní zahrada, koupelna, samostatná toaleta. V podkroví jsou dva pokoje, koupelna s vanou, toaletou, vstup na půdu, kde lze vybudovat další obytný prostor. V 1. podzemním podlaží se nachází prádelna se sušárnou, kotelna, bazén, sauna, koupelna se sprchovým koutem a toaletou. Podlahu pokrývají parkety, dlažba. Špaletová okna. Vytápění plynovým kotlem, ohřev vody bojlerem. Garáž, další možnost parkování na zpevněném povrchu u domu. Vila je z roku 1932 v původním, avšak v udržovaném stavu, má valbovou (zkosení ze všech 4 stran) střechu. Vila má velký potenciál využití. Je vhodná pro bydlení i pro podnikání. Výborné spojení autem i MHD do centra Prahy a na letiště, u domu autobusová zastávka Dyrinka. V okolí jsou v docházkové vzdálenosti tenisové kurty, obchod, restaurace, park. Pro rezidenty parkovaní zajištěno na modré zóně. Dům byl postaven před r. 1947, PENB se nevyžaduje. Výhradní zprostředkování koupě této nemovitosti vám zajistí klidný a bezstarostný průběh celé transakce. V případě zájmu o prohlídku či jakýchkoliv dotazů týkajících se koupě této nemovitosti nás neváhejte kontaktovat na uvedeném telefonním čísle či prostřednictvím e-mailu. Majitel si vyhrazuje právo prodat nemovitost nejvýhodnější nabídce. Koupi je možné financovat i hypotečním úvěrem. Vyřízení hypotéky pro případného zájemce je zajištěno, nabídneme Vám zdarma srovnání všech bank a vyjednáme nejpříznivější podmínky financování. Najdete nás přímo u „Kulaťáku“ na Praze 6 od pondělí do čtvrtka (9:00 - 18:00 hod.) a v pátek (9:00 - 16:00 hod.).
Prodej nadstandardní designové vily: Nemovitost, která definuje úspěch
Hledáte víc než jen dům? Nabízíme architektonický skvost v lokalitě Praha 4 ve velmi klidné, čisté a bezpečné rezidenční čtvrti vkusně udržovaných…
Prodej reprezentativní vily Praha 4 Modřany, ul. Pancířova 287 m užitné plochy, 3 podlaží, garáž pr
Hledáte místo, kde můžete pohodlně bydlet a zároveň mít prostor pro práci nebo podnikání bez kompromisů? Právě jste ho našli. Tato vila vám nabídne…