Aktuálně můžete v lokalitě Praha vybírat z nabídky 295 domů.
Přehled nemovitostí: pronájem domy > rodinné domy Zpět na přehled nabídek

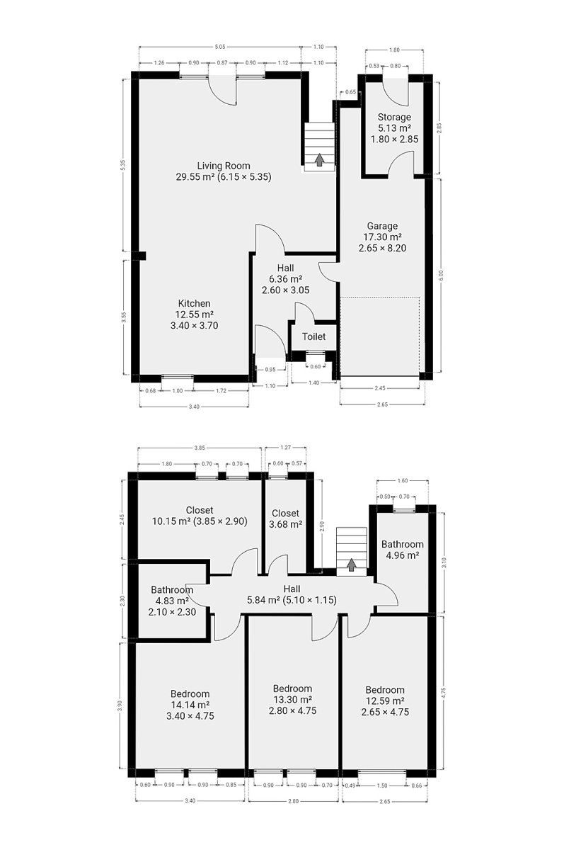
Pronájem domu, Kemrova, Satalice, 40 900 Kč/měs, 141 m2, Praha

315 m2

141 m2

osobní

G - Mimořádně nehospodárná

N7094

12.03.2026

Cena: 40900 CZK / objekt / měsíc
Poznámka k ceně: vratná jistota, náklady na bydlení 9 400 Kč (včetně el. a plynu) , poplatek za podnájem 1

Poslat dotaz k nabídce
Zásady používání osobních údajů

Prodejce

Makléř: Miloslava Kačerová

Telefon: 222 703 ...

E-mail: podpora ...

Zobrazit celý kontakt

Nemovitost nabízí

Ideální nájemce

Lazaretní 925/9, 615 00 Brno

idealninajemce.cz

Zobrazit kontakt na RK

Zobrazit všechny nabídky RK

K dlouhodobému podnájmu nabízíme prostorný prosvětlený rodinný dům o dispozici 4+kk v klidné lokalitě Praha - Satalice. Disponuje podlahovou plochou 141 m2, praktickou garáží a zahradou o velikosti 315 m2, součástí které je altánek s posezením a dlážděná terasa. V přízemí domu se nachází vstupní předsíň s toaletou, garáž se skladem a obývací pokoj s kuchyňským koutem. V prvním patře najdeme tři ložnice, dvě koupelny a dvě šatny. Kuchyně disponuje lednicí, myčkou, elektrickou troubou, varnou deskou, mikrovlnnou troubou a digestoří. Obývací část je zařízena jídelním stolem. Ložnice jsou zařízeny šatními skříněmi. V primární koupelně najdeme rohovou vanu a pračku, v sekundární najdeme sprchový kout a sušičku. Po domluvě s majitelkou je možné řešit koberce a tapety. Satalice jsou známé svým klidným a přátelským prostředím, které je ideální pro rodiny s dětmi nebo pro ty, kteří hledají únik od rušného městského života. Obec disponuje dobrým spojením s centrem Prahy i dalšími městskými částmi díky autobusové dopravě a nedaleké železniční stanici. Z železniční stanice Satalice se lze dostat na Hlavní nádraží v Praze během 20 minut. Najdete zde základní občanskou vybavenost, jako jsou obchody, školky, školy, sportovní zařízení a restaurace. Domácí mazlíčci po vzájemné domluvě povoleni. Dům je k nastěhování od 1.4.



Nahoru