Makléř: Miloslava Kačerová
Telefon: 222 703 ...
E-mail: podpora ...
Zobrazit celý kontaktTelefon: 222 703 030
E-mail: podpora@idealninajemce.cz
Nemovitost nabízí
Ideální nájemce
Lazaretní 925/9, 615 00 Brno
Zobrazit kontakt na RK222 703 030
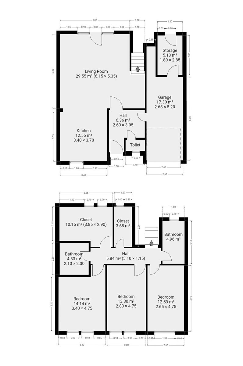
K dlouhodobému podnájmu nabízíme prostorný prosvětlený rodinný dům o dispozici 4+kk v klidné lokalitě Praha - Satalice. Disponuje podlahovou plochou 141 m2, praktickou garáží a zahradou o velikosti 315 m2, součástí které je altánek s posezením a dlážděná terasa. V přízemí domu se nachází vstupní předsíň s toaletou, garáž se skladem a obývací pokoj s kuchyňským koutem. V prvním patře najdeme tři ložnice, dvě koupelny a dvě šatny. Kuchyně disponuje lednicí, myčkou, elektrickou troubou, varnou deskou, mikrovlnnou troubou a digestoří. Obývací část je zařízena jídelním stolem. Ložnice jsou zařízeny šatními skříněmi. V primární koupelně najdeme rohovou vanu a pračku, v sekundární najdeme sprchový kout a sušičku. Satalice jsou známé svým klidným a přátelským prostředím, které je ideální pro rodiny s dětmi nebo pro ty, kteří hledají únik od rušného městského života. Obec disponuje dobrým spojením s centrem Prahy i dalšími městskými částmi díky autobusové dopravě a nedaleké železniční stanici. Z železniční stanice Satalice se lze dostat na Hlavní nádraží v Praze během 20 minut. Najdete zde základní občanskou vybavenost, jako jsou obchody, školky, školy, sportovní zařízení a restaurace. Domácí mazlíčci po vzájemné domluvě povoleni. Dům je k nastěhování od 1.3.
Pronájem rodinného domu 364 m2 Trojská, Praha
Hledáte výjimečné bydlení pro svou rodinu? Nabízíme Vám k pronájmu jedinečný rodinný dům, či jeho část, s velkorysou dispozicí, zahradou a komfortním…
Prostorný rodinný dům 7+1 k pronájmu v Praze Křeslicích se zahradou 713 m2 a terasou
Nabízíme k pronájmu prostorný rodinný dům o dispozici 7+1 v Praze - Křeslicích, které se nacházejí v bezprostřední blízkosti Prahy 10 - Pitkovic,…