Makléř: Milan Šámal
Telefon: 602 100 ...
E-mail: samal@j ...
Zobrazit celý kontaktTelefon: 602 100 722
E-mail: samal@justo.cz
Nemovitost nabízí
JUSTO Česká republika
Korunní 2569/108, 101 00 Praha 10
Zobrazit kontakt na RK
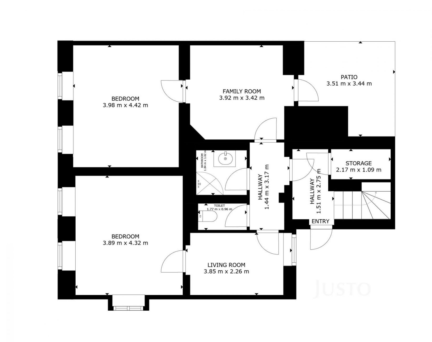
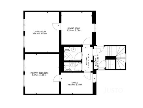
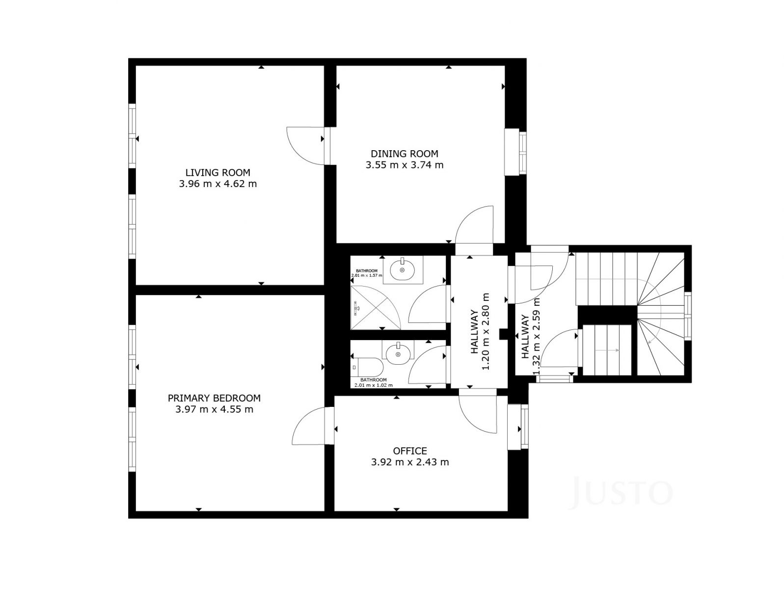
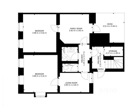
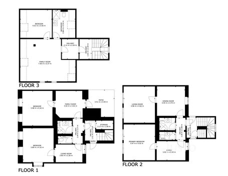
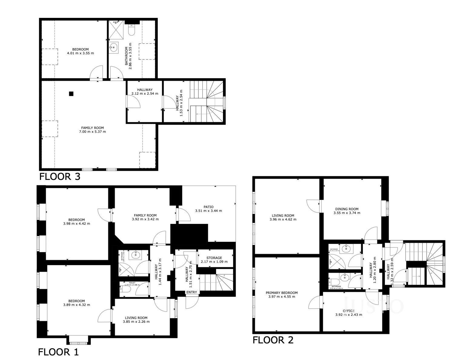
Ve výhradním zastoupení majitele nabízím k prodeji kompletně zrekonstruovaný obytný dům o užitné ploše 207 m, který se nachází v atraktivní a klidné lokalitě Prahy 5 Zbraslav, na ulici Žitavského. Dům je dle listu vlastnictví rozdělen na 3 bytové jednotky a může tak sloužit jako vícegeneračních rodinný dům. V přízemí se nachází bezbariérová bytová jednotka o dispozici 3+1. Celková plocha bytu s příslušenstvím bez podlahové plochy svislých konstrukcí je 58,9 m a se svislými konstrukcemi je 66,4 m. K bytu náleží terasa o výlučném užívání o ploše 12,5 m. V prvním patře je bytová jednotka o dispozici 3+1. Celková plocha bytu s příslušenstvím bez podlahové plochy svislých konstrukcí je 65,1 m a se svislými konstrukcemi je 77,1 m. V druhém patře je podkrovní bytová jednotka o dispozici 2+kk. Celková plocha bytu s příslušenstvím bez podlahové plochy svislých konstrukcí je 58,3 m a se svislými konstrukcemi je 63,6 m. Každý z bytů disponuje kvalitně provedeným interiérem s moderním designem, který je připraven k okamžitému použití bez nutnosti dalších investic, vyjma kuchyňské linky. Ke každému z bytů náleží jedno parkovací stání. Objekt je napojen na centrální plynové vytápění, což zajišťuje komfortní a efektivní provoz všech bytů po celý rok. Stupeň energetické náročnosti budovy je "B", což je zárukou nízkých provozních nákladů. Dům je situován v žádané části Zbraslavi s výbornou občanskou vybaveností a dostupností služeb. V okolí najdete například supermarket Lidl (990 m), fitness centrum, restaurace a kavárny, či sportovní a rekreační zařízení. Nedaleko je i vlaková a autobusová doprava, což zajišťuje skvělou dostupnost do centra Prahy. Pro více informací o této nemovitosti nebo sjednání prohlídky nás prosím kontaktujte nebo vyplňte formulář. <a href="https://www.eurobydleni.cz/byty/2_1/praha-6/obec-brevnov/pronajem/"><strong>Pronájem bytu 2+1 Praha 6, Břevnov</strong></a>
Prodej, Rodinný dům, Praha 9
Rodinný dvojpodlažní rohový dům o dispozici 5+kk, o ploše 143m2 na pozemku 278m2, Praze 9 - Satelice Dvojpodlažní rohový dům 5+kk disponuje v 1. NP…
Prodej, Rodinný dům, Praha 10
Nabízíme k prodeji rodinný dům s dispozicí 4+1, nacházející se v klidné části městské části Praha - Uhříněves, s výbornou dopravní dostupností do…
Prodej rodinného domu Praha 5, Zbraslav na Eurobydleni.cz