Makléř: Bc. Stára Michal
Telefon: 420 605 ...
E-mail: michal. ...
Zobrazit celý kontaktTelefon: 420 605 201 840
E-mail: michal.stara@century21.cz
Nemovitost nabízí
CENTURY 21 Realitas Central Praha
Jeremiášova 2722/2a, 155 00 Praha 13
www.century21.cz/kancelar-realitas-central-praha
Zobrazit kontakt na RK
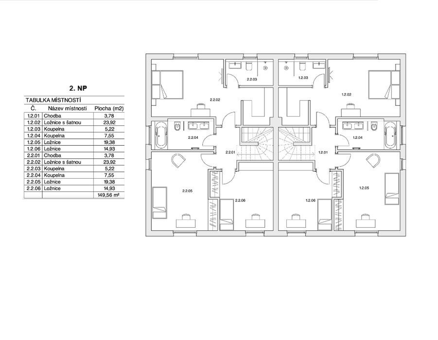
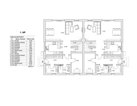
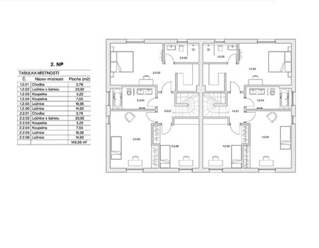
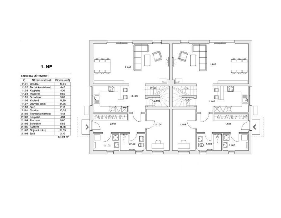
Váš sen o dvougeneračním bydlení a životě v přírodě s městem na dosah! Máte velkou rodinu a hledáte harmonii klidného života, prvotřídního komfortu a aktivního vyžití, aniž byste se vzdali rychlého spojení s centrem Prahy? Právě pro vás máme exkluzivní novostavbu dvougeneračního rodinného domu, která se nachází v jedné z nejvyhledávanějších lokalit - v jihovýchodní okrajové části Prahy, v lukrativním Újezdu u Průhonic. PROSTOR A FLEXIBILITA BEZ KOMPROMISŮ Tento architektonicky promyšlený dům nabízí dvě zcela nezávislé bytové jednotky s dispozicí dvakrát 5+KK, což je ideální řešení pro vícegenerační bydlení, nebo kombinaci vlastního bydlení a investičního pronájmu. Celková podlahová plocha domu 314 m2 rozložená ve dvou jednotkách se dvěma nadzemními podlažími. Fáze 'WhiteWall': Dům je dokončen z 90 %, což vám dává jedinečnou šanci dokončit interiér (podlahy, dveře, koupelny) přesně podle vašich představ a vkusu. Možnost "Na Klíč": Chcete se nastěhovat bez starostí? Developer zajistí kompletní dokončení až po předání klíčů. Kolaudace Říjen 2025. MAXIMÁLNÍ ÚSPORY A NADSTANDARD Užijte si moderní bydlení, které šetří vaši peněženku i planetu. Dům spadá do energetické třídy B (velmi úsporná budova), což zaručuje mimořádně nízké provozní náklady. Tepelné čerpadlo pro efektivní vytápění a ohřev vody. Teplovodní podlahové topení v celém domě pro maximální tepelný komfort. Rekuperace tepla zajišťující další úsporu energií. Příprava na FVE, smarthome, zabezpečovací systém a krb! Luxusní prvky: Velkoformátové obklady, značkové sanitární předměty a elektrické žaluzie jsou součástí projektu dokončení "na klíč" s 10 % doplatkem. LOKALITA, KTERÁ VÁM VEZME DECH Újezd u Průhonic kombinuje klid rezidenční čtvrti s výjimečnou občanskou vybaveností a dechberoucí přírodou. Příroda a Sport: Okolí je rájem pro aktivní život: Milíčovský les, Průhonický park a dendrologická zahrada jsou ideální pro běh, cyklistiku a rodinné výlety. V docházkové vzdálenosti najdete sportoviště (fotbal, tenis, fitness) a tři rybníky. Dostupnost a vybavenost: MHD zastávka: Pouhých 170 metrů od domu. Rychlé napojení na D1: Dvě varianty nájezdu pro bezproblémovou cestu. Občanská vybavenost: Škola, školka, obchody, restaurace a kavárna v docházkové vzdálenosti. Nákupní ráj: Čestlice, Průhonice a nákupní centrum Chodov jsou autem dostupné za pouhých 10 minut. Udělejte první krok ke svému snu! Nenechte si ujít tuto výjimečnou příležitost. Získejte unikátní bydlení, které poroste s vaší rodinou. Kontaktujte nás ještě dnes! Pro bližší informace o ceně, možnostech dokončení a domluvení prohlídky kontaktujte makléře. (Pozn.: Některé fotografie jsou vizuálním návrhem.)
Romantická vila 6+kk, P5 - Smíchov, lokalita Hřebenka, pozemek 546 m2
Romantická historická vila 6+kk, Praha 5 Smíchov, ulice Tichá. Zažijte okouzlující atmosféru minulé éry s tímto podmanivým kamenným domem z roku…
Prodej vily 11+1(674m2), pozemek 2276m2, Praha 5 - Velká Chuchle
Nadčasová, nízkoenergetická (B), velkoryse pojatá, třípodlažní vila (z roku 2012) s bazénem, prosvětleným a vzdušným interiérem na slunném upraveném…