Makléř: Aleš Vladař
Telefon: 777 111 ...
E-mail: ales.vl ...
Zobrazit celý kontaktTelefon: 777 111 420
E-mail: ales.vladar@homesweethome.cz
Nemovitost nabízí
Home Sweet Home
Pařížská 1073/1, 110 00 Praha 1
Zobrazit kontakt na RK
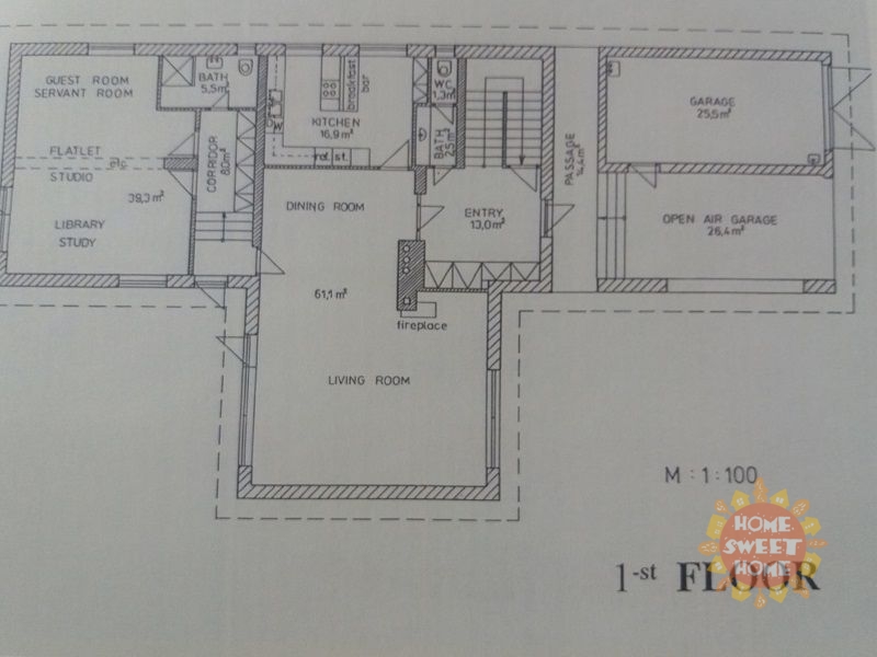
Exkluzivní nabídka pronájmu krásného rodinného patrového domu s rozlehnou udržovanou zahradou se nachází v klidné lokalitě Kunratic v ulici Ke Hrádku, Praha 4. Rodinný dům o rozloze 417m2 je plně vybavený moderním nábytkem. Dům sestává z 5 ložnic s vestavěnými skříněmi ( hlavní ložnice je s koupelnou), velkým obývací pokoj s jídelním koutem a krbem, 4 koupelnami, prádelnou, sportovní místností - komora, vinný sklípek, kůlna na zahradní nářadí a krásnou rozlehnou zahradou o celkové rozloze 1000m2, která je pravidelně udržována. Zdrojem vytápění je plynový atmosférický kotel. V domě je internet, telefonní linky, zabezpečovací systém pro celý dům, satelitní parabola. K dispozici je jedno garážové stání s dálkovým otevíráním vrat a další 2 parkovací místa k dispozici v areálu. Osvědčení o energetické náročnosti budovy je kategorie B - velmi hospodárná budova.Britská škola je vzdálená jen 3 km jízdy autem a velká obecní nemocnice je vzdálena 5 minut na pražském předměstí Krč. Obec má řadu malých obchodů plus pošta, policejní stanici a květinovou školku. Za kostelem je tenisový klub a přes ulici squashový klub s vynikajícím vybavením. Velký les je vzdálen pouhých 5 minut chůze od domu. Má řadu dobře značených procházek vedle potoka napájeného z jezera v centru vesnice. Toto jezero se v zimě používá pro bruslení a lední hokej. Na jaře je potok navštěvován jeleny. Cesta do centra města trvá autem 10 až 15 minut. Pro každodenní a víkendové nakupování se nachází hned vedle stanice metra Chodov obrovské nákupní centrum OC Chodov. Nákupní centrum Průhonice je vzdálené pouhých 10 minut jízdy autem i samotné město Průhonice. Město Průhonice nabízí všechny své potěšení, jako jsou restaurace, sportovní zařízení a zámek Průhonice s velkým parkem. Nemovitost je k dispozici od 15.prosince.
Pronájem samostatného rodinného domu 7+1 (400m2), Praha 6 - Nebušice
Nabízíme k pronájmu samostatně stojící rodinný dům 7+1 (400m2) s zastřešeným venkovním bazénem a saunou. V přízemí domu (180m2) jsou vstupní hala,…
Novostavba ŘRD 7+kk + terasa + balkon + garáž, 220 m2, Praha 4 - Háje, přímo u Hostivařské přehrady
Novostavba ŘRD 7+kk + terasa + balkon + garáž a parkovací stání v domě - užitná plocha 220 m2, který se nachází na pozemku o celkové výměře 132 m2 v…