Makléř: Milan Podhorský
Telefon: 602 231 ...
E-mail: milan@p ...
Zobrazit celý kontaktTelefon: 602 231 398
E-mail: milan@pomi.cz
Nemovitost nabízí
Soukromá inzerce z DBP.cz
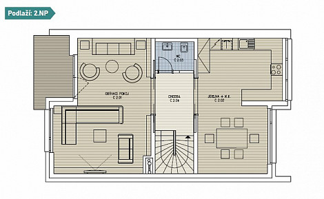
Novostavba ŘRD 7+kk + terasa+balkon+garáž a parkovací stání v domě-užitná plocha 220 m2, který se nachází na pozemku o celkové výměře 132 m2 v Praze 4-Háje, přímo u Hostivařské přehrady s pláží a parkem. Jedná se o dosud neobývanou novostavbu kolaudovanou v roce 2025. V domě jsou 4 samostatné ložnice, 2 x koupelna se sprchovým koutem a vanou, 3x WC, obývací pokoj se vstupem na balkon, kuchyň s jídelnou, moderní kuchyňská linka s vestavěnými spotřebiči - lednice s mrazákem, myčka, horkovzdušná trouba, indukční varná deska, mikrovlnka, digestoř, prádelna, prostorná předsíň. Podlahové vytápění a teplou vodu zajišťuje vlastní tepelné čerpadlo. Poloha RD přímo u Hostivařské přehrady s pláží, volejbalovým hřištěm a parkem s cyklostezkami a tenisovými kurty zajišťuje sportovní vyžití pro každého vyznavače sportu.V docházkové vzdálenosti je stanice metra Háje,stanice autobusů, mnoho obchodů a restaur., několik základních škol a školek,zdr.střediska. K nastěhování cca od konce listopadu 2025.
Novostavba ŘRD 7+kk + terasa + balkon + garáž, 220 m2, Praha 4 - Háje, přímo u Hostivařské přehrady
Novostavba ŘRD 7+kk + terasa + balkon + garáž a parkovací stání v domě - užitná plocha 220 m2, který se nachází na pozemku o celkové výměře 132 m2 v…
Novostavba ŘRD 7+kk + terasa + balkon + garáž, 220 m2, Praha 4 - Háje, přímo u Hostivařské přehrady.
Novostavba ŘRD 7+kk + terasa + balkon + garáž a parkovací stání v domě - užitná plocha 220 m2, který se nachází na pozemku o celkové výměře 132 m2 v…