Makléř: Savynets Lidiya
Telefon: 775 604 ...
E-mail: muj.dom ...
Zobrazit celý kontaktTelefon: 775 604 602
E-mail: muj.domov.reality@seznam.cz
Nemovitost nabízí
Můj domov REALITY s.r.o.
U půjčovny 953/4, Praha
Zobrazit kontakt na RK775 604 602
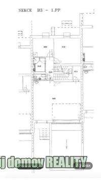
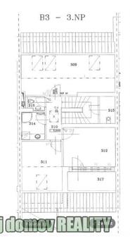
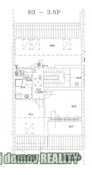
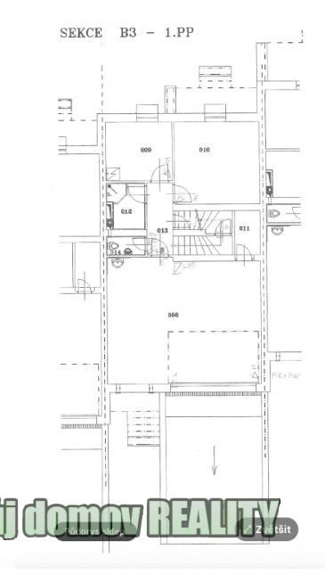
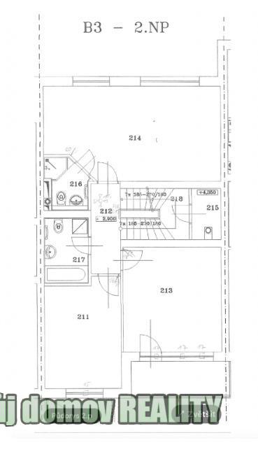
Předej řadového dumu 8+1, 354m2, 3x balkon, terasa a zahrada 200m2. Habartická, Praha 9 - Střížkov. Zajistíme vám americkou hypotéku bez doložení příjmů, možnost převodu do družstva nebo řešení splátek formou nájmu. Nabídka řadového domu v zánovní novostavbě na prodej v Praze Střížkově, pouhých 5 minut od metra. Dům má 3 nadzemní a jedno podzemní patro. Nabízí 8+1 pokojů. Celková užitná plocha činí 354 m2, s možností využití podkroví. V domě naleznete 4 nadzemní podlaží: snížené přízemí, které má 2 neprůchozí místnosti s okny a oddělené WC. Dále je zde sprchový kout v technické místnosti (kotelna), kde je umístěn plynový kondenzační kotel a elektrický bojler. K dispozici je též prádelna, pokoj vhodný jako kancelář, kumbálek pod schody a garáž pro 2 automobily, kde je umístěno umyvadlo a technická místnost. Na prvním podlaží se nachází 3 pokoje, vstupní hala, kuchyně s prostorným obývacím pokojem, s nádherným výhledem, vchod na terasu a do zahrady o rozloze 200 m2, kde si můžete užívat rodinné chvíle, grilování nebo postavit bazén s opalováním. Dále zde jsou 2 neprůchozí pokoje, koupelna, WC, komora a balkon. Na druhém podlaží najdete velký pokoj se sprchou a WC, další neprůchozí pokoj a další pokoj s balkonem. Ve třetím podlaží jsou 3 neprůchozí místnosti, koupelna, samostatné WC a střešní balkon. Stavba: Cihlová Stav objektu: Zánovní Poloha domu: Řadový Typ domu: Patrový Podlaží:4 včetně 1 podzemního Plocha zastavěná:99 m2 Užitná plocha:354 m2 Plocha podlahová:350 m2 Plocha pozemku:380 m2 Zahrada: 2OO m2 Sklep: ano Parkování: 2 garážovaná místa Garáž: ano Datum nastěhování: Ihned Topení: Ústřední plynové Plyn: Plynovod Odpad: Veřejná kanalizace Energetická náročnost budovy:Třída G - Mimořádně nehospodárná č. 78/2013 Sb. podle vyhlášky Prodejní cena činí 28 900 000 Kč. Pro více informací a domluvení prohlídky kontaktujte našeho realitního makléře: Realitní kancelář: Můj domov REALITY Makléř: Lidiya Savynets Komunikační aplikace: WhatsApp / Viber / Telegram: @LidiyaSyvynets Dům má dřevěné parkety a je ideální pro rodinu, firmu a kanceláře, hodí se také jako školka. Pokud hledáte pohodlné a klidné bydlení v Praze, a kousek od metra, pak tato nemovitost je přesně pro vás. Neváhejte a kontaktujte nás. Těšíme se na vaši zprávu. Děkujeme. <a href="https://www.eurobydleni.cz/byty/3_1/praha-5/obec-hlubocepy/pronajem/"><strong>Pronájem bytu 3+1 Praha 5, Hlubočepy</strong></a>
Prodej, Rodinný dům, Praha 10
Hledáte zajímavý dům se zahradou pro bydlení nebo v kombinaci s podnikáním - nabízím k prodeji prostorný třípodlažní dům dispozice 6 + 2 s terasami,…
Vila pro velkou rodinu v Horních Počernicích - promyšlený domov o 305 m na Praze 9
Vila pro velkou rodinu v Horních Počernicích. Promyšlený domov o 305 m podlahové plochy. V klidné části a ulici Horních Počernic na vás čeká…
Prodej rodinného domu Praha 9, Střížkov na Eurobydleni.cz