Makléř: Petr Fišera, DiS.
Telefon: 777 598 ...
E-mail: petr@rk ...
Zobrazit celý kontaktTelefon: 777 598 669
E-mail: petr@rkgroup.cz
Nemovitost nabízí
RK Group realitní kancelář
K Dalejím 89/2, 152 00 Praha 5
Zobrazit kontakt na RK739 092 000
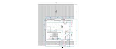
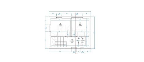
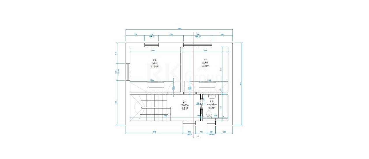
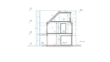
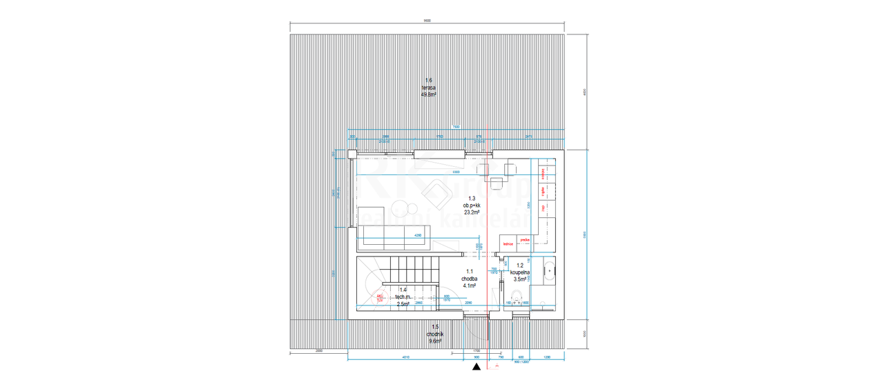
Dovoluji si Vám nabídnout stavební pozemek s projektem rodinného domu 3+KK (102 m2) s terasou (50 m2) v krásné přírodě chatové osady v Praze 5 - Slivenec jen 15 min. od Anděla. Pozemek je k prodeji vč. kompletně zpracovaného projektu se stavebním povolením na rodinný dům - dřevostavbu se statusem rekreačního objektu. V okolí je většina staveb obdobných, určena a využívána k trvalému ceroročnímu bydlení. Navržený dům s plnohodnotnou dispozicí 3+kk a zastavěnou plochou 44 m2 (+ 50 m2 velká terasa) má dvě obytná podlaží a dvě další malé podkrovní místnosti využitelné jako ložnice, pracovny, či úložné prostory. Ve spodním podlaží je vstupní předsíň se schodištěm, koupelna se sprchovým koutem a toaletou a krásně prosklený obývací pokoj s prostornou kuchyní a vstupem na terasu. Z celého domu jsou krásné výhledy do zeleně. Ve druhém podlaží jsou dvě ložnice + koupelna s vanou a toaletou. V každé ložnici je navrženo žebříkové schodiště do dalších podkrovních místností. Pozemek je mírně svažitý s kaskádou a unikátní tím, že přes něj ve spodní části teče potok Vrutice. V oblasti nehrozí z potoka záplava. Ve spodní části máme také navržené zahradní jezírko, napájené z místního pramene + bude v ceně pozemku vyřešen projekt studny. Pozemek má bohaté vodní zdroje, kde krom místního povrchového pramene pitné vody (všechny okolní domy čerpají vodu z tohoto pramene) jsou zde vodohospodáři zjištěny i prameny spodní vody cca 8 m hluboko. Na pozemku je zavedena elektrika (aktuálně obec dokončuje 3 fáze) a lze zřídit i vlastní pomníček, o což bude zažádáno a v rámci výstavby je plánována realizace. Pozemek se nachází cca 20 m od silnice u které lze parkovat - autem nelze zajet až na pozemek. Na hranici pozemku je to zmíněných 20 m po mírných přírodních schodech. Doprava materiálu na stavbu lze i z druhé strany pozemku, což představíme na osobní prohlídce. Nemovitost je v osobním vlastnictví bez jakýchkoliv právních vad či omezení. Financování je možné i hypotéčním úvěrem, se kterým Vám zdarma a kvalitně pomůžeme. Pro bližší informace, či domluvení prohlídky mě neváhejte kontaktovat.
Nabízíme k prodeji rodinný dům 3+1
Nabízíme k prodeji rodinný dům 3+1/G,S, s podlahovou plochou 90 m2, 15 m2 garáž, Praha 9 - Kyje. RD se nachází v klidné části obce Prahy 9 Kyje (Na…
Prodej, Rodinný dům, Praha 4
Nabízíme k prodeji rodinný dům s pozemkem o celkové výměře 518 m2, situovaný v klidné rezidenční části Prahy 4 - Michle, v ulici U Plynárny. Lokalita…