Aktuálně můžete v lokalitě Praha vybírat z nabídky 326 domů.
Přehled nemovitostí: prodej domy > rodinné domy Zpět na přehled nabídek

Prodej projektu RD 102 m2 + 50 m2 terasa na pozemku 664 m2 v Praze 5 - Slivenec., Praha

664 m2

102 m2

osobní

G - Mimořádně nehospodárná

8586

05.11.2025

Cena: 4990000 CZK / objekt
Poznámka k ceně: cena zahrnuje kompletní právní a hypotéční servis i provizi RK 1

Poslat dotaz k nabídce
Zásady používání osobních údajů

Prodejce

Makléř: Petr Fišera, DiS.

Telefon: 777 598 ...

E-mail: petr@rk ...

Zobrazit celý kontakt

Nemovitost nabízí

RK Group realitní kancelář

K Dalejím 89/2, 152 00 Praha 5

www.rkgroup.cz

Zobrazit kontakt na RK

Zobrazit všechny nabídky RK

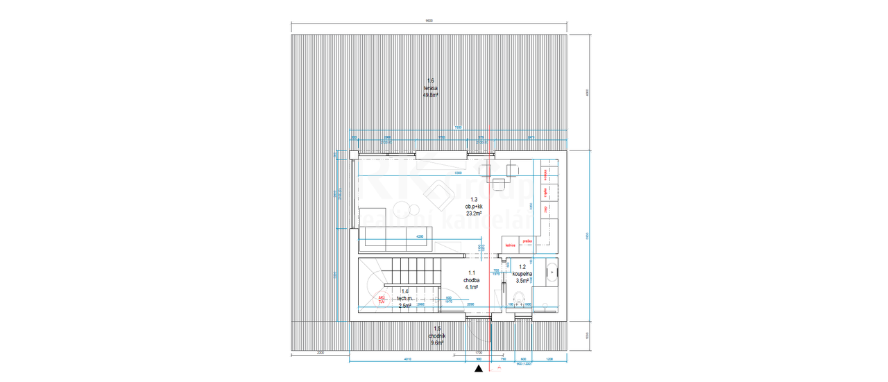
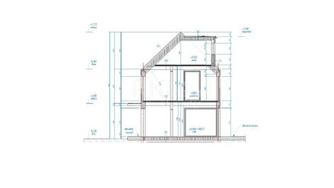
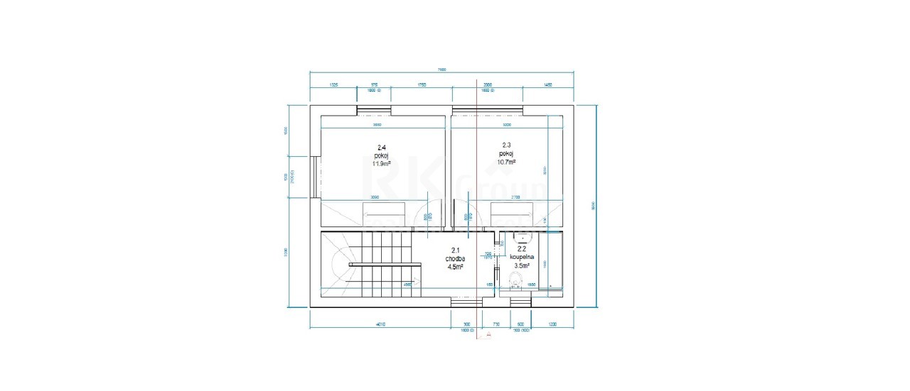
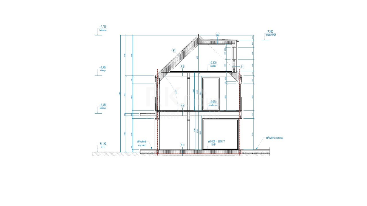
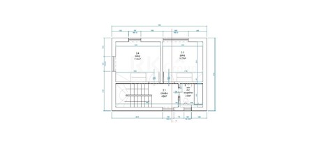
Dovoluji si Vám nabídnout stavební pozemek s projektem rodinného domu 3+KK (102 m2) s terasou (50 m2) v krásné přírodě chatové osady v Praze 5 - Slivenec jen 15 min. od Anděla. Pozemek je k prodeji vč. kompletně zpracovaného projektu se stavebním povolením na rodinný dům - dřevostavbu se statusem rekreačního objektu. V okolí je většina staveb obdobných, určena a využívána k trvalému ceroročnímu bydlení. Navržený dům s plnohodnotnou dispozicí 3+kk a zastavěnou plochou 44 m2 (+ 50 m2 velká terasa) má dvě obytná podlaží a dvě další malé podkrovní místnosti využitelné jako ložnice, pracovny, či úložné prostory. Ve spodním podlaží je vstupní předsíň se schodištěm, koupelna se sprchovým koutem a toaletou a krásně prosklený obývací pokoj s prostornou kuchyní a vstupem na terasu. Z celého domu jsou krásné výhledy do zeleně. Ve druhém podlaží jsou dvě ložnice + koupelna s vanou a toaletou. V každé ložnici je navrženo žebříkové schodiště do dalších podkrovních místností. Pozemek je mírně svažitý s kaskádou a unikátní tím, že přes něj ve spodní části teče potok Vrutice. V oblasti nehrozí z potoka záplava. Ve spodní části máme také navržené zahradní jezírko, napájené z místního pramene + bude v ceně pozemku vyřešen projekt studny. Pozemek má bohaté vodní zdroje, kde krom místního povrchového pramene pitné vody (všechny okolní domy čerpají vodu z tohoto pramene) jsou zde vodohospodáři zjištěny i prameny spodní vody cca 8 m hluboko. Na pozemku je zavedena elektrika (aktuálně obec dokončuje 3 fáze) a lze zřídit i vlastní pomníček, o což bude zažádáno a v rámci výstavby je plánována realizace. Pozemek se nachází cca 20 m od silnice u které lze parkovat - autem nelze zajet až na pozemek. Na hranici pozemku je to zmíněných 20 m po mírných přírodních schodech. Doprava materiálu na stavbu lze i z druhé strany pozemku, což představíme na osobní prohlídce. Nemovitost je v osobním vlastnictví bez jakýchkoliv právních vad či omezení. Financování je možné i hypotéčním úvěrem, se kterým Vám zdarma a kvalitně pomůžeme. Pro bližší informace, či domluvení prohlídky mě neváhejte kontaktovat.



Nahoru