Makléř: Milan Podhorský
Telefon: 602 231 ...
E-mail: milan@p ...
Zobrazit celý kontaktTelefon: 602 231 398
E-mail: milan@pomi.cz
Nemovitost nabízí
Soukromá inzerce z DBP.cz
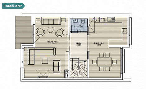
Novostavba ŘRD 7+kk + terasa + balkon + garáž a parkovací stání v domě - užitná plocha 220 m2, který se nachází na pozemku o celkové výměře 132 m2 v Praze 4 - Háje, přímo u Hostivařské přehrady s pláží a parkem. Jedná se o dosud neobývanou novostavbu kolaudovanou v roce 2025. V domě jsou 4 samostatné ložnice, 2 x koupelna se sprchovým koutem a vanou, 3x WC, obývací pokoj se vstupem na balkon, kuchyň s jídelnou, moderní kuchyňská linka s vestavěnými spotřebiči - lednice s mrazákem, myčka, horkovzdušná trouba, indukční varná deska, mikrovlnka, digestoř, prádelna, prostorná předsíň. Podlahové vytápění a teplou vodu zajišťuje vlastní tepelné čerpadlo. Okna jsou s izolačním 3 sklem (v 1.NP s bezpečnostním zasklením), na všech oknech předokenní žaluzie na dálkové ovládání, videotelefon v obou patrech, příprava na klimatizaci. V celém domě jsou použity pouze kvalitní a moderní materiály - na podlahách třívrstvé dřevěné dubové podlahy, dlažba, obklady, vypínače Schneider, veškeré zařizovací předměty jsou od firem Laufen, Grohe a Franke, datové zásuvky ve všech obytných místnostech. K domu přísluší zahrada s podzemní nádrží na dešťovou vodu, dřevěná venkovní terasa je z materiálu Thermowood s venkovní zásuvkou a nezámrzným kohoutem na vodu. Samostatný vjezd pouze pro rezidenty 5 RD přes závoru na dálkové ovládání. Poloha RD přímo u Hostivařské přehrady s pláží, volejbalovým hřištěm a parkem s cyklostezkami a tenisovými kurty zajišťuje sportovní vyžití pro každého vyznavače sportu. V docházkové vzdálenosti je stanice metra Háje, stanice autobusů, mnoho obchodů a restaurací, několik základních škol a školek, banky a zdravotní střediska. V tomto RD jste blízko krásné přírody, ale máte i veškeré vymoženosti moderního bydlení. K nastěhování od listopadu 2025.
Pronájem rodinného domu se zahradou: Praha 6 - Nebušice, Ke Strži
Nabízíme k pronájmu luxusní nezařízený rodinný dům 7+kk ve vyhledávané lokalitě v Praze 6 - Nebušice s pěší dostupností do mezinárodní školy ISP. Dům…
Novostavba ŘRD 7+kk + terasa + balkon + garáž, 220 m2, Praha 4 - Háje, přímo u Hostivařské přehrady
Novostavba ŘRD 7+kk + terasa + balkon + garáž a parkovací stání v domě - užitná plocha 220 m2, který se nachází na pozemku o celkové výměře 132 m2 v…