Makléř: Ing. ŠVANDA Martin
Telefon: 602 232 ...
E-mail: martin. ...
Zobrazit celý kontaktTelefon: 602 232 109
E-mail: martin.svanda@servisia.cz
Nemovitost nabízí
servisia s.r.o.
Nad hradním vodojemem 13/33, Praha 6
Zobrazit kontakt na RK
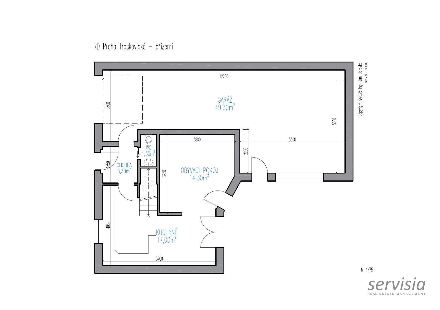
Ve výhradním zastoupení majitelů exkluzivně nabízíme k prodeji hezký řadový rodinný dům v ulici Troskovická, Praha 9 Kbely. Dům o základní dispozici 3+1 prošel kompletní rekonstrukcí v roce 2016. Nemovitost se nachází v dobře dostupné lokalitě v klidném okraji hlavního města Prahy s kompletní občanskou vybaveností v okolí školy, školky, obchody, restaurace i zdravotní zařízení. Samozřejmostí je výborné dopravní spojení do centra Prahy, a to jak autem, tak městskou hromadnou dopravou nebo vlakem (cca 20 minut). Je to ideální volba pro ty, kteří chtějí být blízko města, ale zároveň vyhledávají klidné prostředí s rychlým přístupem do přírody. V pěší dostupnosti najdete Kbelský lesopark s rybníky, cyklostezkami a hřišti, na dosah je také Letňanský lesopark a zámecký areál Ctěnice s krásným parkem. Milovníci sportu ocení široké možnosti vyžití kromě běžných sportovišť a cyklostezek je v okolí také golfový areál Vinoř, které dodává lokalitě jedinečný charakter a nabízí příležitost pro relax i společenská setkání. Zastavěná plocha domu je 116 m2, celková plocha všech pozemků je 172 m2. Podlahová plocha domu je pak 168 m2. Při vstupu do domu je vpravo kuchyně spojená s obývacím pokojem, ze kterého je výstup na malou zahrádku o výměře cca 30 m2, kde je možné nerušeně odpočívat. Na chodbě je pak WC místnost, ve které je umístěna i sprcha. Dominantou přízemí domu je prostorná garáž o výměře 50 m2, kde z části tohoto prostoru je možné vybudovat další obytnou místnost. V horní části domu jsou umístěny 2 ložnice, šatna a prostorná koupelna o výměře 35 m2, kde je umístěna vana i sprchový kout. Zároveň se zde nachází bojler a elektrokotel. Dům je vybaven centrálním vysavačem, který zajišťuje pohodlný a efektivní úklid. Skladba jednotlivých místností je znázorněna na půdorysu. Dům je napojen na obecní vodovod a kanalizaci. Vytápění zajišťuje ústřední topení s elektrokotlem, ale díky krbu s teplovodní vložkou je možné celý dům efektivně vytápět dřevem, což velmi pozitivně přispívá k úsporám na nákladech na provoz domu. Krb je navržen jako oboustranný s možností přikládání z garáže, což umožňuje udržet v interiéru domu čistotu a pohodlí. Parkování je zajištěno v garáži nebo na vlastním pozemku před domem, kde je možné pohodlně zaparkovat 2 auta. Energetická třída G je uvedena dočasně, vzhledem k novele zákona č. 406/2000 Sb. o hospodaření s energií. Po dodání energetického štítku bude uvedena skutečná energetická třída této nemovitosti. Prohlídku prodávané nemovitosti je možné domluvit na uvedeném telefonním čísle nebo e-mailu. V případě více zájemců bude upřednostněn zájemce s nejvyšší nabídnutou kupní cenou. Financování nemovitosti Vám rádi zajistíme. <a href="https://www.eurobydleni.cz/domy/rodinny-dum/sumperk/obec-sumperk/prodej/"><strong>Prodej rodinného domu Šumperk</strong></a>
Prodej rodinného domu s hezkou zahradou v klidné části Prahy 9 - Běchovice.
Dovoluji si Vám nabídnout starší zachovalý rodinný dům s pěknou rovinnou zahradou v klidné a příjemné ulici pražských Běchovic. Dům je z většinové…
Prodej, Rodinný dům, Praha 10
Hledáte zajímavý dům se zahradou pro bydlení nebo v kombinaci s podnikáním - nabízím k prodeji prostorný třípodlažní dům dispozice 6 + 2 s terasami,…
Prodej rodinného domu Praha 9, Kbely na Eurobydleni.cz