Makléř: Bc. Stára Michal
Telefon: 420 605 ...
E-mail: michal. ...
Zobrazit celý kontaktTelefon: 420 605 201 840
E-mail: michal.stara@century21.cz
Nemovitost nabízí
CENTURY 21 Realitas Central Praha
Jeremiášova 2722/2a, 155 00 Praha 13
www.century21.cz/kancelar-realitas-central-praha
Zobrazit kontakt na RK
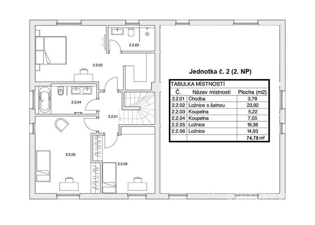
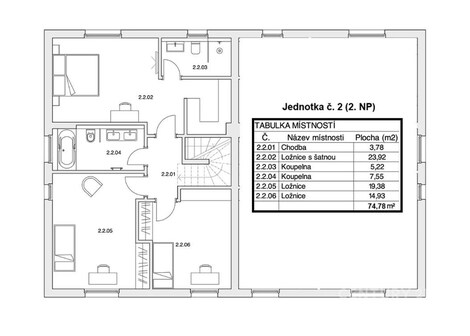
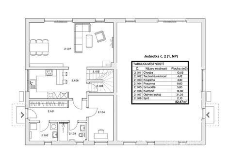
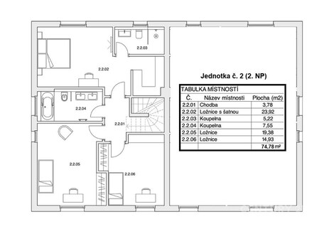
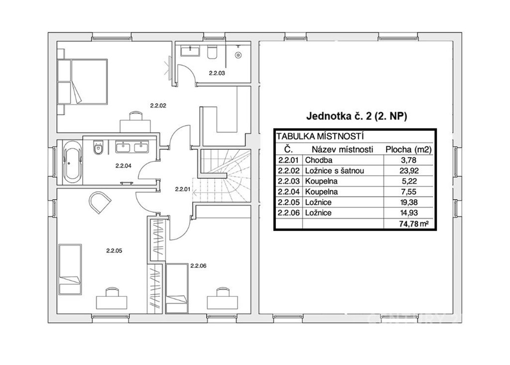
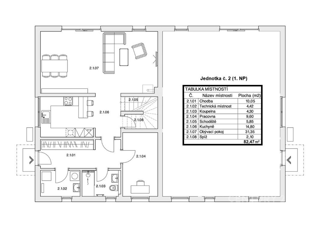
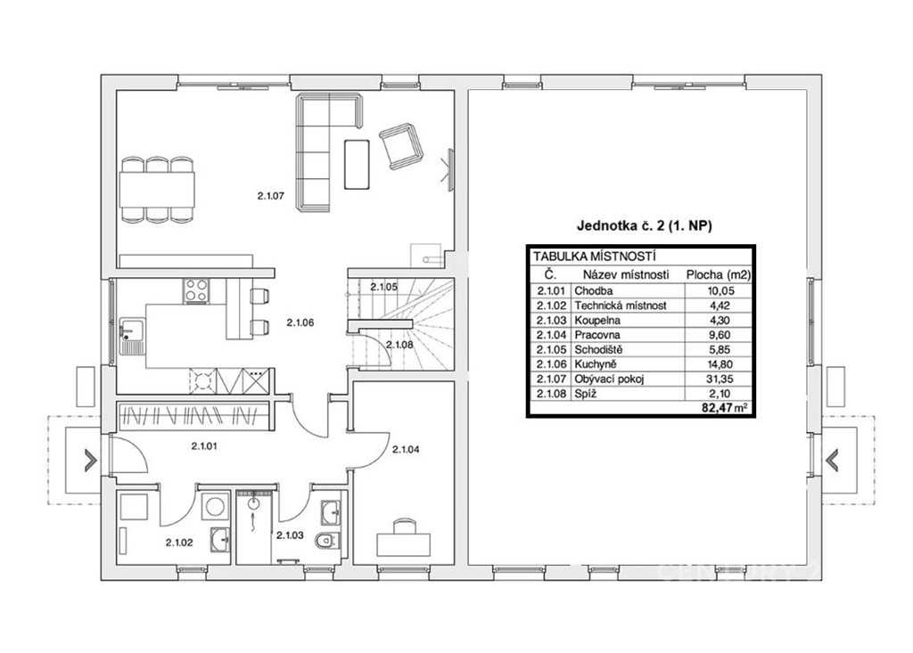
Hledáte ideální kombinaci klidného i aktivního života zároveň? Možnost blízkého sportovního vyžití a obklopeni přírodou? Výbornou dopravní dostupností do centra velkoměsta s napojením na D1? Máme pro vás řešení. V jihovýchodní okrajové části Prahy, v lukrativní lokalitě Újezdu u Průhonic, vyrostla novostavba dvougeneračního rodinného domu s vlastní zahradou, který je nyní na prodej. Váš budoucí dům je navržen tak, aby splňoval požadavky na moderní a komfortní bydlení. Dispozice 5+KK o celkové podlahové ploše 157 m2 se rozkládá se ve dvou nadzemních podlažích. Součástí domu je vlastní zahrada a parkovací stání. Nemovitosti je napojena na elektřinu, vodu a kanalizaci. Kolaudace proběhla v říjnu 2025 a dům je ve fázi 'whitewall', tedy máte možnost vlastní volby účelu místností konfigurace těchto prvků je nyní na vás. Případně vám developer dům dodělá 'na klíč'. Více informací vám poskytne makléř. Nadstandard a úspora energií Kromě promyšlené dispozice se můžete těšit na celou řadu moderních prvků. Vytápění a ohřev vody zajišťuje tepelné čerpadlo v kombinaci s teplovodním podlahovým topením, což spolu s rekuperací tepla zaručuje nízké provozní náklady. Nemovitost spadá do energetické třídy B, tedy do kategorie velmi úsporných budov, dalšímu upgradu pomůže i příprava na fotovoltaiku. Projekt počítá s nadstandardním vybavením, jako jsou velkoformátové obklady, značkové sanitární předměty, elektrické žaluzie, zabezpečovací systémy a příprava pro systém smarthome a krb. Lokalita, co vám vezme dech Dům se nachází v klidné rezidenční čtvrti s dostatkem zeleně a širokou občanskou vybaveností v docházkové vzdálenosti (sportoviště na fotbal a tenis, škola, školka, restaurace, kavárna a obchody). Další rozšířená vybavenost, včetně nákupních center, je dostupná v sousedních Čestlicích, Průhonicích a Chodově, kam se autem dostanete za pouhých 10 minut. Pro milovníky přírody, sportu (např. běhu nebo joggingu a cyklistiky) je okolí doslova rájem (Milíčovský les, Průhonický park a dendrologická zahrada), nedaleko jsou 3 rybníky a navazující plochy polí, luk a lesů. Dopravní dostupnost do centra je vynikající, zastávka MHD je pouhých 170 metrů od domu a rychlé napojení na dálnici D1 je ve dvou variantách nájezdů. Jak si svůj sen splnit? V současné fázi výstavby, s 90% dokončeností, vám nabízíme dvě možnosti, jak se stát majitelem této unikátní nemovitosti: Kdy si sami dokončíte interiér dle svých představ a získáte tak bydlení za nejnižší cenu, nebo budete chtít dokončení od developera 'na klíč'. Bližší informace o ceně vám podá makléř. Nenechte si ujít tuto výjimečnou příležitost a kontaktujte nás pro více informací. Některé fotografie jsou pouze vizuálním návrhem.
Prodej rodinného domu 6+1 v Praze Hloubětín
Nabízíme k prodeji rodinný dům 6+1 celkovou podlahovou plochou 318 m2 v klidné části Hloubětína, ulice V Chaloupkách. Dům z roku 1971 je postaven v…
Prodej rodinného domu, 110 m2, Praha 6, ul. K Prelátům
Nabízíme k prodeji rodinný dům v klidné části Přední Kopaniny, ideální pro ty, kteří hledají pohodlí i krásný výhled. Dům o dispozici 3+1 a užitné…