Aktuálně můžete v lokalitě Praha vybírat z nabídky 295 domů.
Přehled nemovitostí: prodej domy > rodinné domy Zpět na přehled nabídek

EXKLUZIVNÍ POLOVINA DVOJDOMU 5+KK S VLASTNÍ ZAHRADOU - ÚJEZD U PRŮHONIC, Praha

521 m2

157 m2

B - Velmi úsporná

967299

03.03.2026

Cena: na dotaz v RK
Poznámka k ceně: Informace o ceně v RK. 1

Poslat dotaz k nabídce
Zásady používání osobních údajů

Prodejce

Makléř: Bc. Stára Michal

Telefon: 420 605 ...

E-mail: michal. ...

Zobrazit celý kontakt

Nemovitost nabízí

CENTURY 21 Realitas Central Praha

Jeremiášova 2722/2a, 155 00 Praha 13

www.century21.cz/kancelar-realitas-central-praha

Zobrazit kontakt na RK

Zobrazit všechny nabídky RK

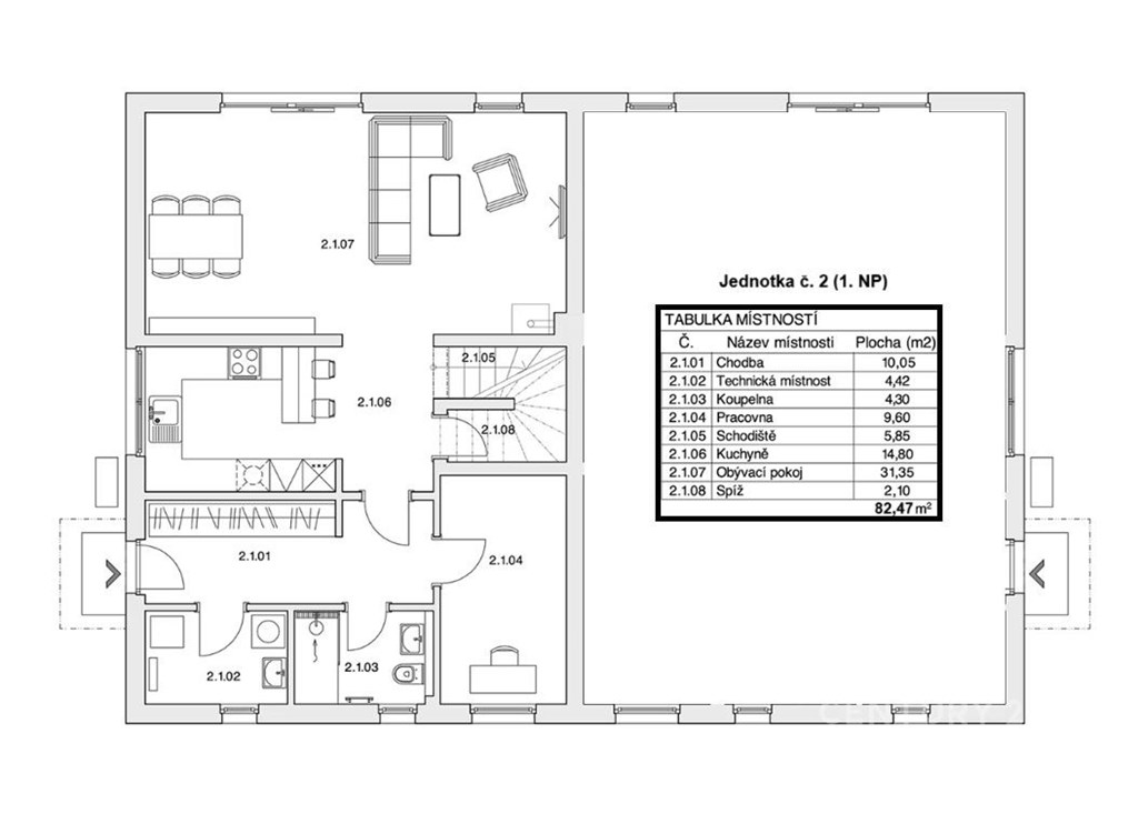
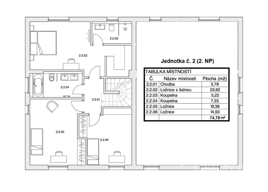
Vaše nová kapitola začíná zde - v dokonalé symbióze přírody a městského komfortu! Užitná plocha domu: 157 m2 | Dispozice: 5+kk | Novostavba na klíč | Zahrada: 423 m2. PROČ PRÁVĚ TENTO DŮM? Představte si místo, kde se každé ráno probouzíte do zpěvu ptáků, kde vaše děti vyrůstají obklopené zelení, a přesto máte centrum Prahy na dosah ruky. To je váš nový domov v Újezdu u Průhonic! GARANTOVANÁ JISTOTA - BEZ RIZIKA, BEZ STAROSTÍ! Zkolaudováno - právní jistota zajištěna. Dokončení stavby od výběru materiálu do 2 měsíců - žádné zdlouhavé čekání. V ceně máte o osobního designera, který vám pomůže s návrhem interiéru a připraví vizualizace. Nabídková cena zahrnuje kompletní dokončení na klíč BYDLENÍ, KTERÉ PŘEKONÁ VAŠE OČEKÁVÁNÍ Součástí nemovitosti: Prostorná zahrada - soukromé místo pro relaxaci a radosti s rodinou 5 vlastních parkovacích stání - pohodlí každý den. NADSTANDARD, KTERÝ SI ZASLOUŽÍTE Prémiové značky: Villeroy & Boch, Hansgrohe, Grohe, Geberit, SOHO, Provenza Moderní technologie: Tepelné čerpadlo + podlahové topení Fotovoltaika Chytrá domácnost Elektrické žaluzie Zabezpečovací systém Velkoformátové obklady Příprava na krb LOKALITA, DO KTERÉ SE ZAMILUJETE Újezd u Průhonic je synonymem pro kvalitní život. Obklopeni Milíčovským lesem, Průhonickým parkem a dendrologickou zahradou, kde máte nekonečné možnosti pro odpočinek i aktivní vyžití. Kompletní občanská vybavenost: Sportoviště, škola, školka. Restaurace, kavárny, obchody. Zastávka MHD: 170 metrů. Dálnice D1 s rychlým spojením (možnosti 2 nájezdů: Chodov, PrůhoniceČestlice). Centrum Prahy: vynikající dostupnost. Čestlice, Průhonice a Chodov jsou vzdáleny 10 minut autem. TOTO JE PŘÍLEŽITOST, KTERÁ SE NEVRACÍ! Nemovitosti této kvality zmizí z trhu během okamžiku. Staňte se součástí privilegované komunity, která si zvolila nejlepší z obou světů - klid přírody a dynamiku moderního života. Kontaktujte nás ještě dnes a domluvte si osobní prohlídku! Rádi vám poskytneme veškeré informace, odpovíme na otázky a pomůžeme s financováním. Váš nový domov na vás čeká - zbývá jen udělat první krok! Újezd u Průhonic - tam, kde se sen stává skutečností! Pozn.: "Některé fotografie zobrazují virtuální home staging - vizualizaci možného budoucího vzhledu nemovitosti."



Nahoru