Makléř: Milan Podhorský
Telefon: 602 231 ...
E-mail: milan@p ...
Zobrazit celý kontaktTelefon: 602 231 398
E-mail: milan@pomi.cz
Nemovitost nabízí
Soukromá inzerce z DBP.cz
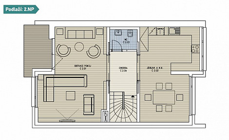
Novostavba ŘRD 5+kk + 2x terasa - 190 m2, který se nachází na pozemku o celkové výměře 285 m2 v Praze 5 - Košíře. Jedná se o novostavbu kolaudovanou v roce 2021. V domě jsou 4 samostatné ložnice, 3 x koupelna (zn. Villeroy & Bosch, Grohe) se sprchovým koutem, jedna i s vanou, 4x WC, obývací pokoj s kuchyňským koutem a vstupem na terasu, kuchyňská linka s vestavěnými spotřebiči (zn. Whirlpool, Franke) - lednice s mrazákem, myčka, horkovzdušná trouba, sklokeramická varná deska, mikrovlnka, digestoř, technická místnost. Vytápění a teplou vodu zajišťuje vlastní plynový kotel. Okna jsou hliníková, východ z obývacího pokoje HS portál, elektricky ovládané předokenní žaluzie, klimatizace, zabezpečovací zařízení, videotelefon. Na podlahách je dlažba v kombinaci s dřevěnými dubovými podlahami. K domu přísluší zahrada osázená vč. stromů s podzemní nádrží s čerpadlem na vodu na zalévání, 2 parkovací stání před domem. Dům možno využívat i jako dvougenerační, v 1.PP samostatná garsonka se vstupem na zahradu a samostatným přístupem přes branku z dolní ulice. Veškerá občanská vybavenost, výborná dopravní dostupnost - 10 min. MHD Metro B, zast. Anděl. K nastěhování dle dohody. Cena 54.900,-/měsíc. Pro více info volejte na tel. 602231398.
Luxusní rodinný dům 6+ kk, 280 m2, Praha 4, Kunratice
Luxusní rodinný dům v klasickém stylu s mramorem a křišťálovými lustry Elegantní interiér, 4 ložnice, pracovňa, terasy a zahrada ideální pro rodinné…
Novostavba ŘRD 7+kk + terasa + balkon + garáž, 220 m2, Praha 4 - Háje, přímo u Hostivařské přehrady
Novostavba ŘRD 7+kk + terasa + balkon + garáž a parkovací stání v domě - užitná plocha 220 m2, který se nachází na pozemku o celkové výměře 132 m2 v…