Makléř: Brüxová Martina DiS.
Telefon: 296 399 ...
E-mail: info@mm ...
Zobrazit celý kontaktTelefon: 296 399 006
E-mail: info@mmreality.cz
Nemovitost nabízí
M&M reality holding a.s.
Krakovská 1675/2, 110 00 Praha 1
Zobrazit kontakt na RK800 100 446
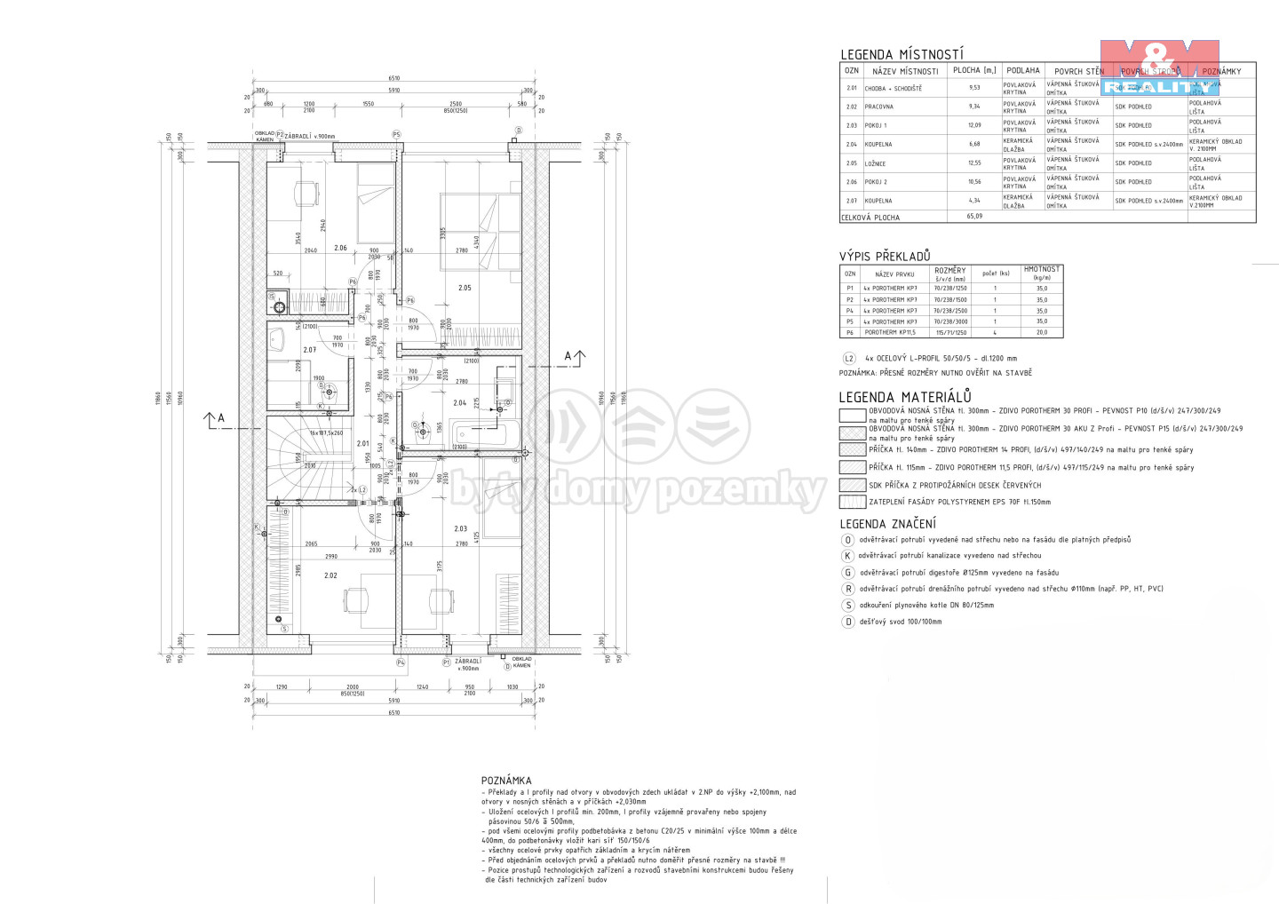
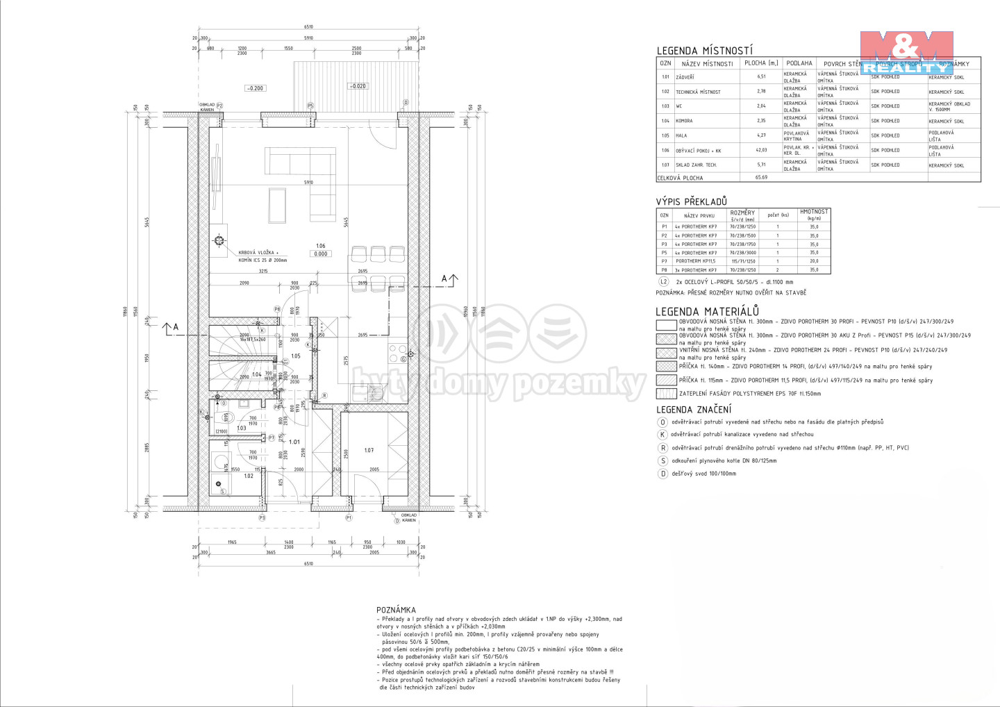
Nabízíme k prodeji moderní novostavbu řadového rodinného domu v klidné a žádané lokalitě Praha - Štěrboholy. Zděný, zateplený dům zkolaudovaný v roce 2024 je součástí menší rezidenční zástavby a splňuje nejnovější standardy komfortního a úsporného bydlení. Dispozice 5 místností a kuchyňský kout s užitnou plochou 122 m2 poskytuje dostatek prostoru pro rodinný život. Energetická náročnost budovy B - velmi úsporná. Vytápění zajišťuje plynový kotel s podlahovým topením. Pozemek o rozloze 180 m2 zahrnuje oplocenou zahrádku pro odpočinek i rodinné aktivity a předzahrádku s parkovacím stáním přímo na pozemku. V docházkové vzdálenosti je kompletní občanská vybavenost - školy, obchody, MHD i sportoviště. Výborná dostupnost do centra a na Pražský okruh. Ideální volba pro ty, kdo hledají kvalitní a moderní bydlení v klidném prostředí. Pro více informací nebo domluvení prohlídky nás neváhejte kontaktovat.
Prodej, Rodinný dům, Praha 10
Představuji luxusní a prostornou vilu na prodej v městské části Záběhlice v ulici Dolní Chaloupky, kde najdete klid a pohodlí kousek od centra…
Prodej novostavby rodinného domu 5+kk, Praha - Královice
Na prodej nabízíme moderní rodinný dům 5+kk v městské části Praha - Královice. Novostavba z roku 2022 tvoří polovinu dvojdomu, je postavená z…