Makléř: Zuzana Veselá
Telefon: 800 775 ...
E-mail: info-re ...
Zobrazit celý kontaktTelefon: 800 775 577
E-mail: info-reality@swisslifeselect.cz
Nemovitost nabízí
Swiss Life Select Reality
Pobřežní 620/3, 186 00 Praha
Zobrazit kontakt na RKinfo-reality@swisslifeselect.cz
800 775 577
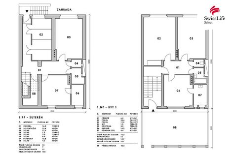
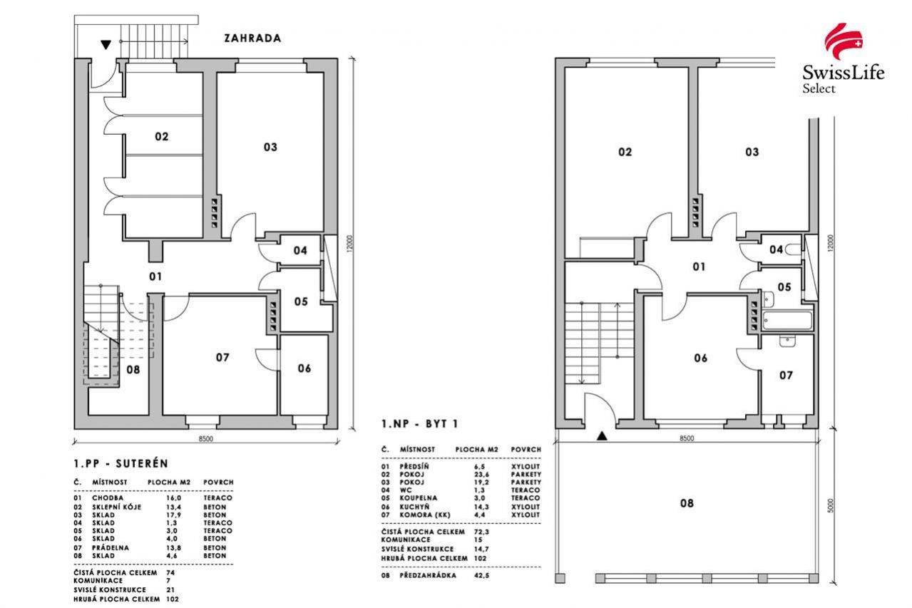
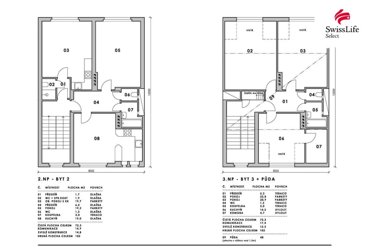
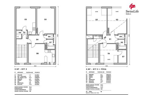
Rodinný dům v klidné ulici Ke Džbánu, jen 3 minuty chůze od tramvajové zastávky Divoká Šárka. Přímý výhled do zeleně, skvělá dostupnost do centra i na letiště, přírodní rezervace za rohem. Čtyři nadzemní podlaží včetně půdy a jedno podzemní. Každé patro má výměru cca 102 m, celková užitná plocha tedy činí 408 m. Na pozemku o celkové výměře 332 m se nachází také zahrada o rozloze 230 m. Dispozice domu je aktuálně připravena pro 5 samostatných bytových jednotek, zapsání v katastru zatím neproběhlo. Půdní prostor umožňuje další rozšíření například o dvě další bytové jednotky. Stav nemovitosti vyžaduje kompletní rekonstrukci. Požár způsobený nedopalkem zanechal interiér začouzený, statika i konstrukce domu však zůstaly neporušené. Majitel již zahájil výmalbu a základní obnovu prostoru. Investiční potenciál je zásadní. Vzniknout může projekt nájemního bydlení, bytový dům k prodeji nebo vícegenerační rodinné bydlení. Dům není zatížen právními vadami a je ihned k dispozici. Zaujalo Vás to? Zavolejte si a rovnou si domluvte prohlídku. Podobné příležitosti v této části Prahy se objevují jen výjimečně. <a href="https://www.eurobydleni.cz/byty/2_1/praha-3/obec-zizkov/pronajem/"><strong>Pronájem bytu 2+1 Praha 3, Žižkov</strong></a>
Prodej rodinného domu 4+kk s garáží, Praha - Satalice
Pokud hledáte kombinaci přírody, klidu a dobře přístupného městského života, pak jsou pro Vás Satalice tou pravou volbou. Nabízejí možnost bydlet v…
Prodej rodinného domu, 110 m2, na pozemku 1132 m2, Praha - Kolovraty
Možnost výstavby až dvou domů - potvrzeno stavebním úřadem | Rodinný dům 4+1 s velkým pozemkem 1132 m2 - Praha-Kolovraty | 110 m2 + sklep. Podle…
Prodej rodinného domu Praha 6, Liboc na Eurobydleni.cz