Makléř: Kareš Jaroslav
Telefon: 420 739 ...
E-mail: jarosla ...
Zobrazit celý kontaktTelefon: 420 739 682 221
E-mail: jaroslav.kares@century21.cz
Nemovitost nabízí
CENTURY 21 Premium
Zlatnická 1582/10, 110 00 Praha 1
www.century21.cz/kancelar/premium/
Zobrazit kontakt na RK603 892 407
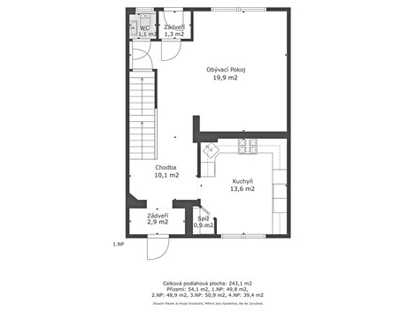
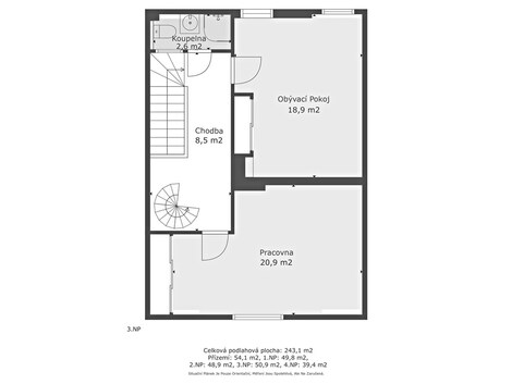
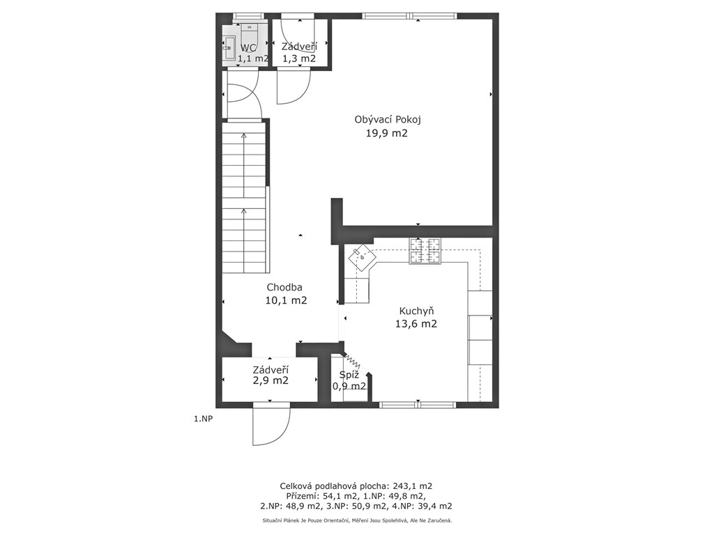
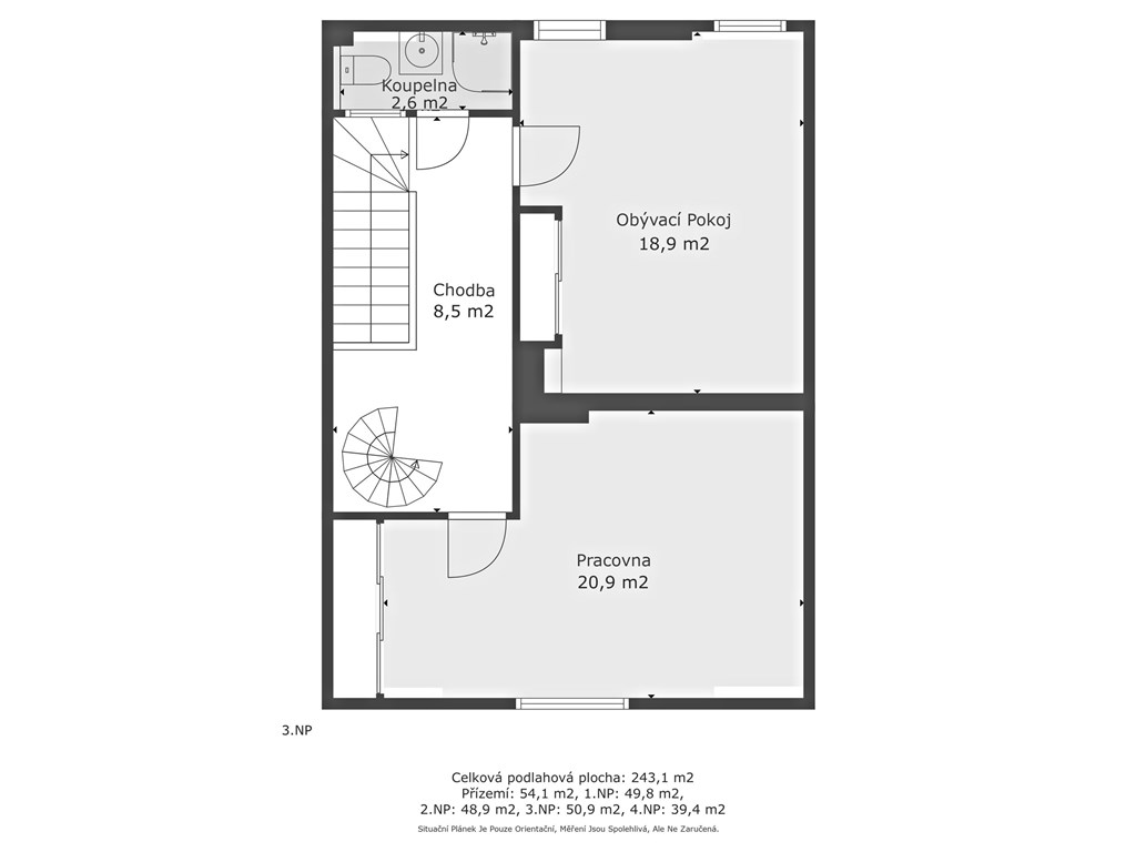
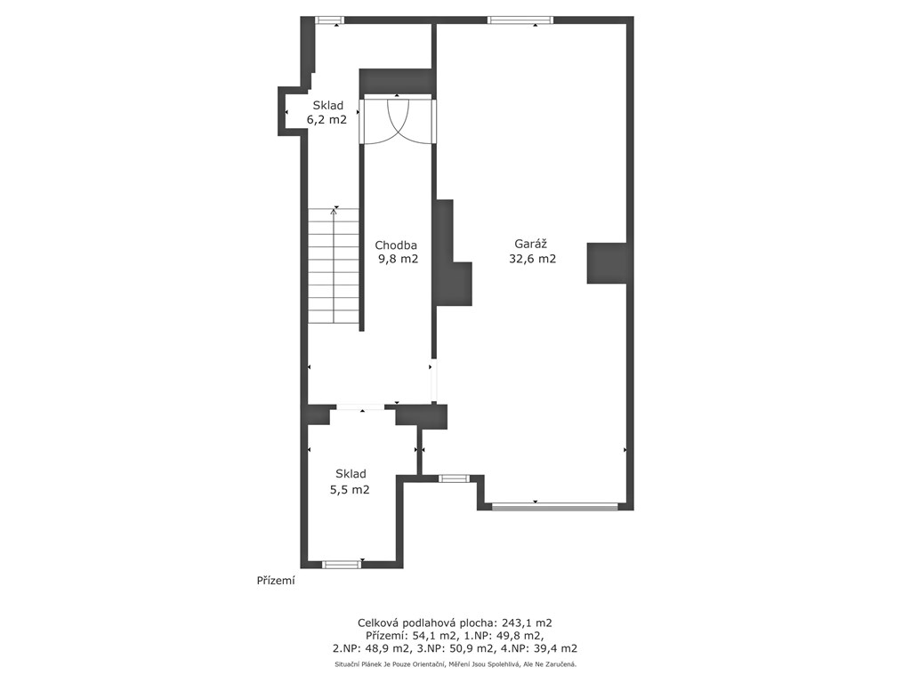
Je jen málo Pražských lokalit a čtvrtí, které jsou už svým názvem synonymem výjimečného místa určeného k životu a bydlení. Jednou z nich a bezesporu tou nejatraktivnější, je Hanspaulka. A právě zde, v Dejvicích v Praze 6 v ulici Nad Šárkou, Vám nabízíme k prodeji místně klasickou řadovou rodinnou vilu vystavěnou ve stylu art deco. Dům z období 30. let 20. století má v současné době dispozici 6+1 a celkovou užitnou plochu 243 m2, která zahrnuje prostornou garáž pro dva vozy s úložnými prostory a technickým zázemím domu, přízemí kde je k dispozici obývací pokoj, kuchyně a hostinská toaleta, v I. patře jsou dvě ložnice a hlavní koupelna s toaletou, ve II. patře pak dva pokoje, které slouží, jako pracovna, dětský pokoj a s nimi je na patře koupelna s toaletou a dále obytné podkroví, které je v současné době ateliérem a hernou. Celý dům byl od počátku milénia do dnešní doby průběžně rekonstruován a nadstandardně udržován, kdy došlo k výměně vstupních a interiérových dveří, nové jsou veškeré podlahy (dlažba, dřevo, lamino), vzniklo již zmíněné obytné podkroví, nová je také kuchyně a zcela nový je plynový kotel Vaillant, který v domě zajišťuje vytápění. Poloha domu spojuje ulice Nad Šárkou a Menšíkovská, ze které je možný vstup přímo na zahradu s terasou o celkové velikosti 141 m2, kde jsou krásné vzrostlé stromy a okrasné keře. Historie Hanspaulky sahá do konce 19. století, kdy na místě původních vinohradů a zemědělských usedlostí začala vznikat výstavba mnoha architektonicky zajímavých vil a rodinných domů, která pokračuje dodnes - především se jedná o funkcionalistické stavby. Oblast získala vlastní školu a další občanskou vybavenost. Na Hanspaulce bydlelo a bydlí mnoho významných osobností. Těsné sousedství domů navazující na přírodní oblast Horní Šárka jen podtrhuje atraktivitu této nemovitosti a místa. Pro bližší informace kontaktujte, prosím, makléře.
Prodej, Rodinný dům, Praha 10
Prodej RD 255 m2 7+1(3BJ)/G/T, Pod Sychrovem II, Praha-Michle, na pozemku 384 m2, nacházejícího se v klidné vilové zástavbě . Uvedená podlahová…
Prodej, Rodinný dům, Praha 12
prodej rodinného domu 5+1, 105m2, P4 Modřany, ul. Nad Soutokem, se zahradou 712 m2, garáží 33m2 a bazénem. Jedná se o polovinu dvojdomu. Dům je…