Makléř: Iveta Neumahrová
Telefon: 734 699 ...
E-mail: neumahr ...
Zobrazit celý kontaktTelefon: 734 699 884
E-mail: neumahrova@dumrealit.cz
Nemovitost nabízí
Dumrealit.cz
Svornosti 8, 150 00 Praha 5
Zobrazit kontakt na RK
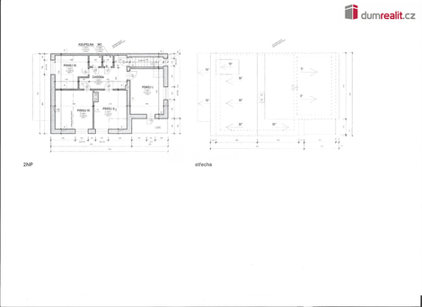
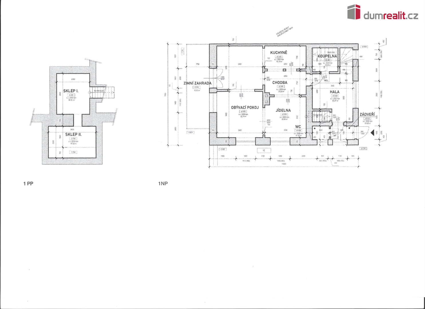
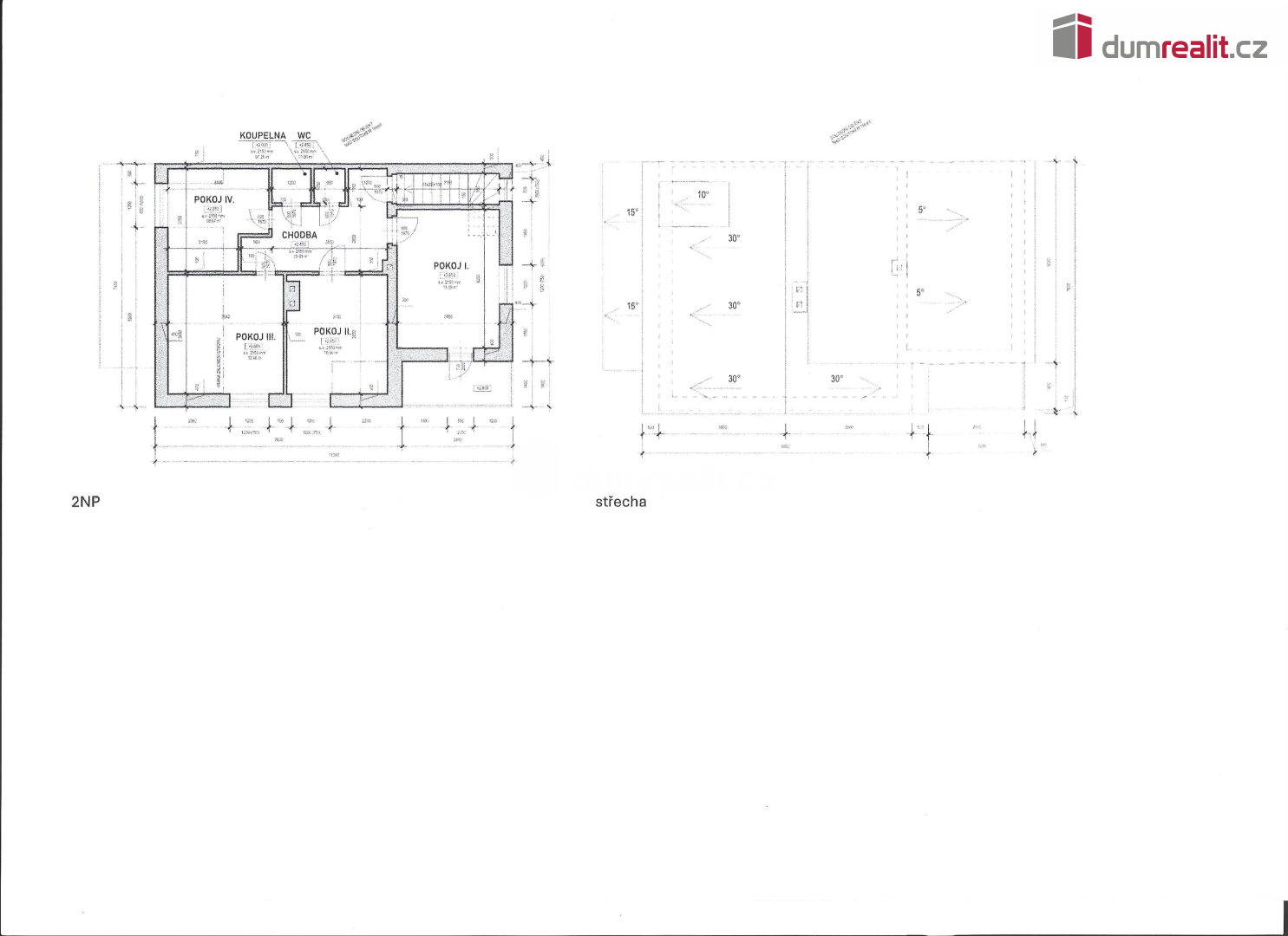
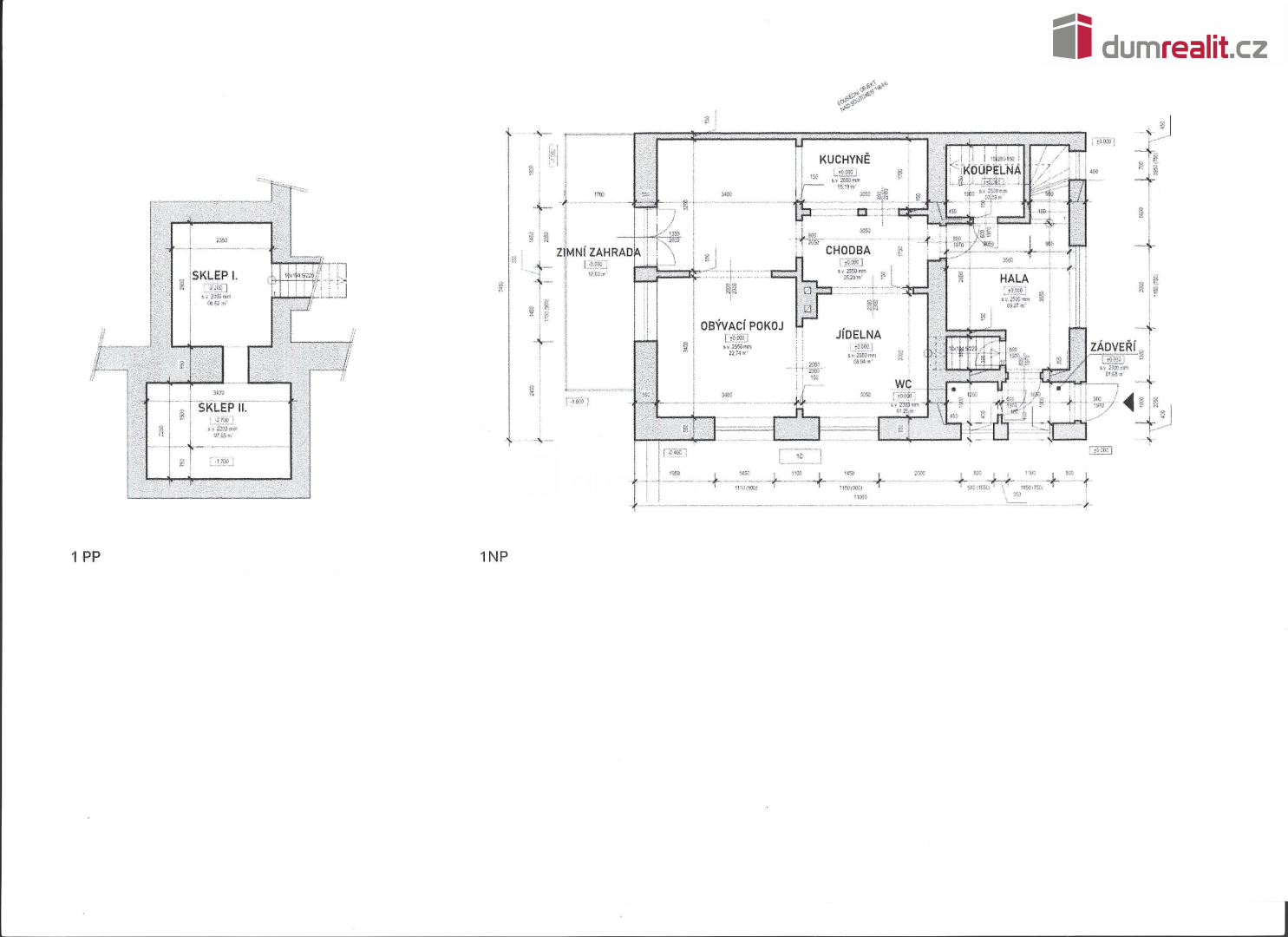
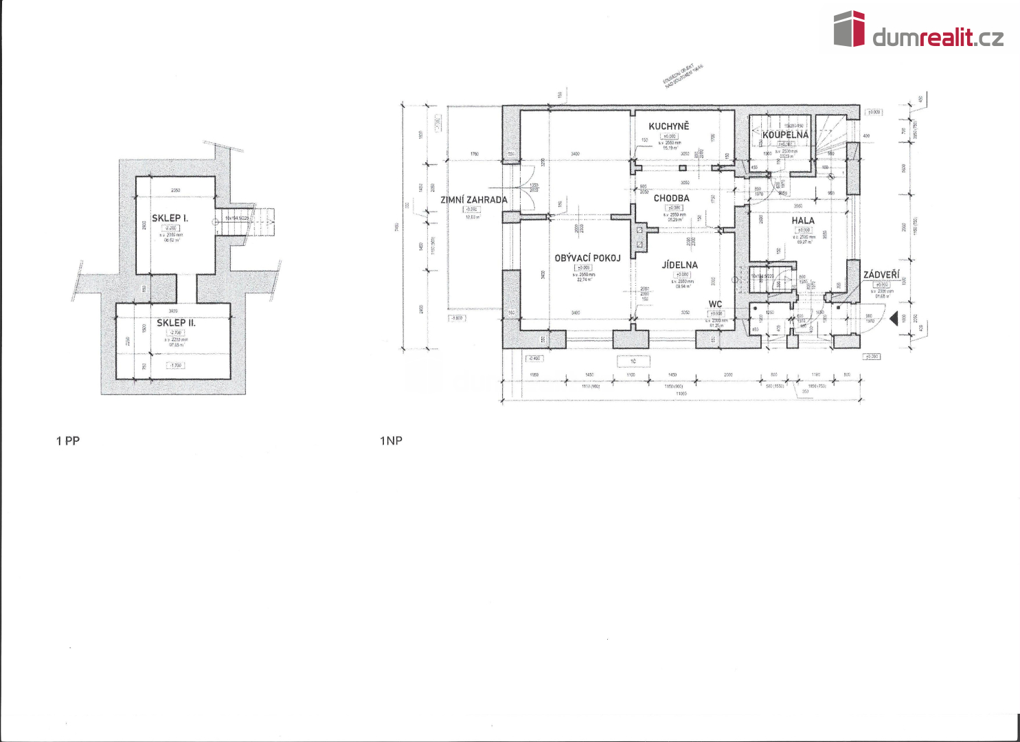
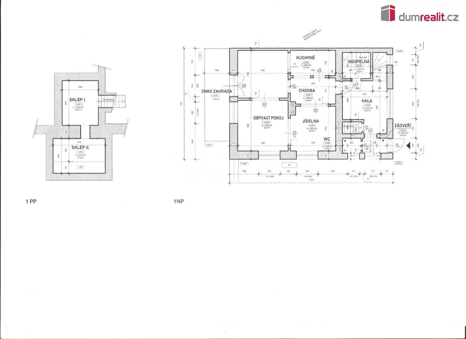
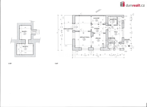
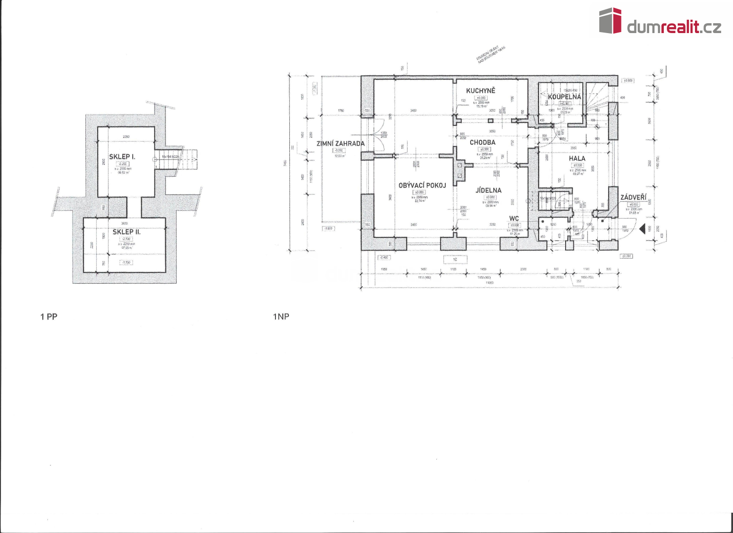
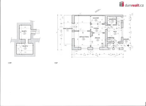
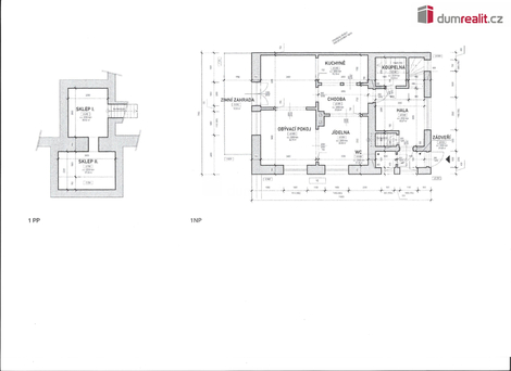
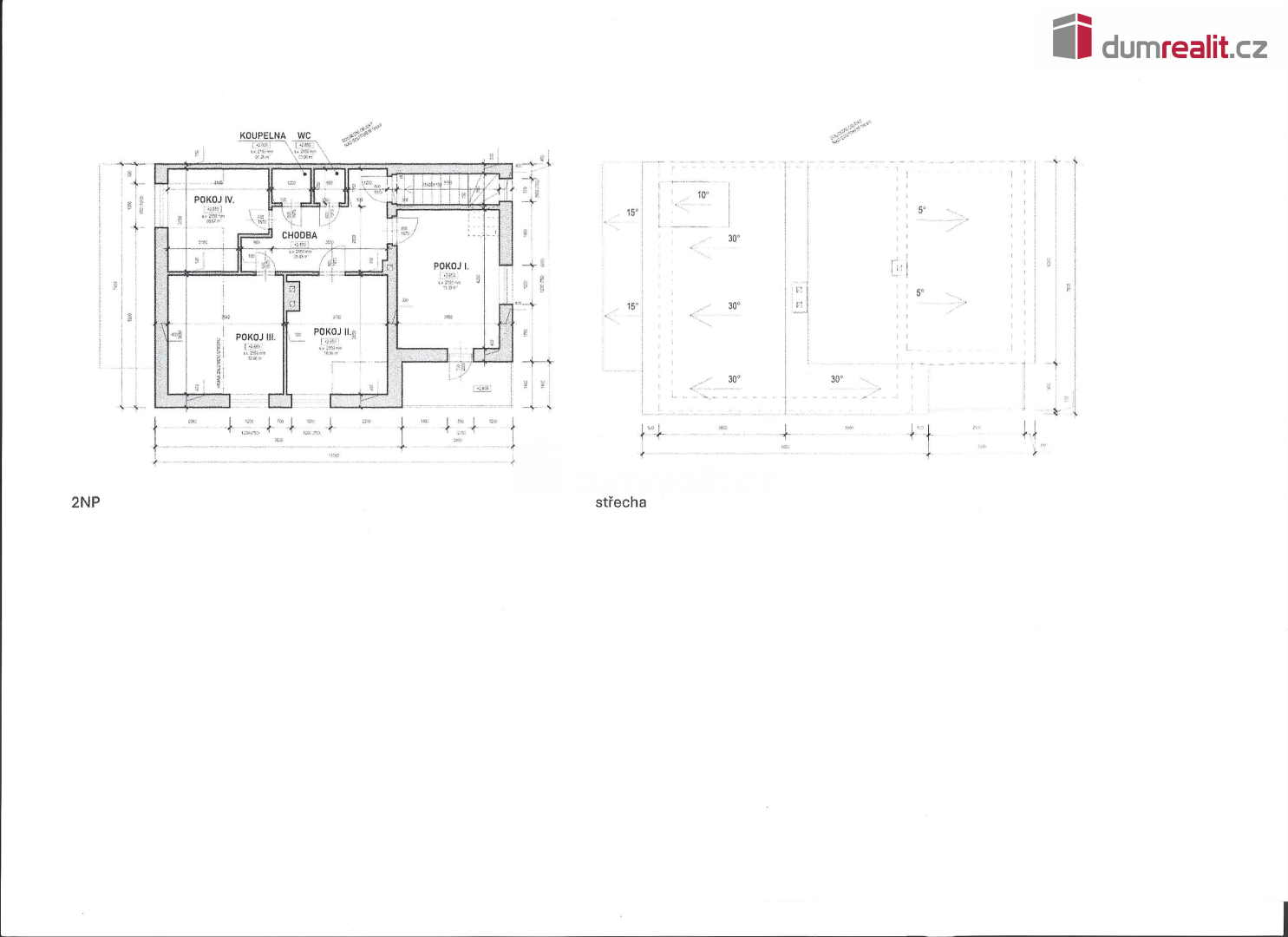
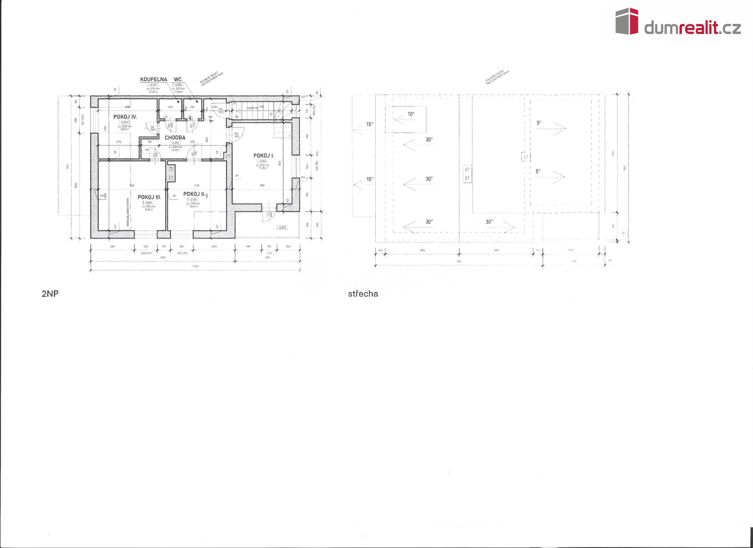
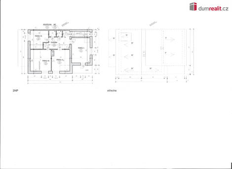
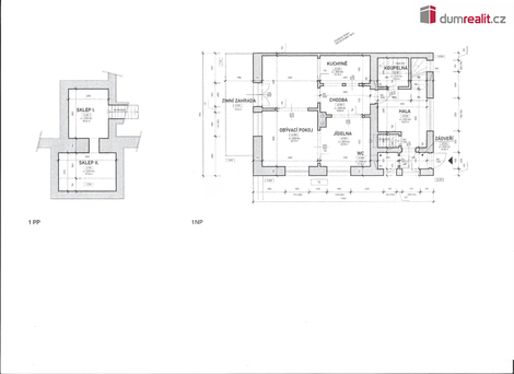
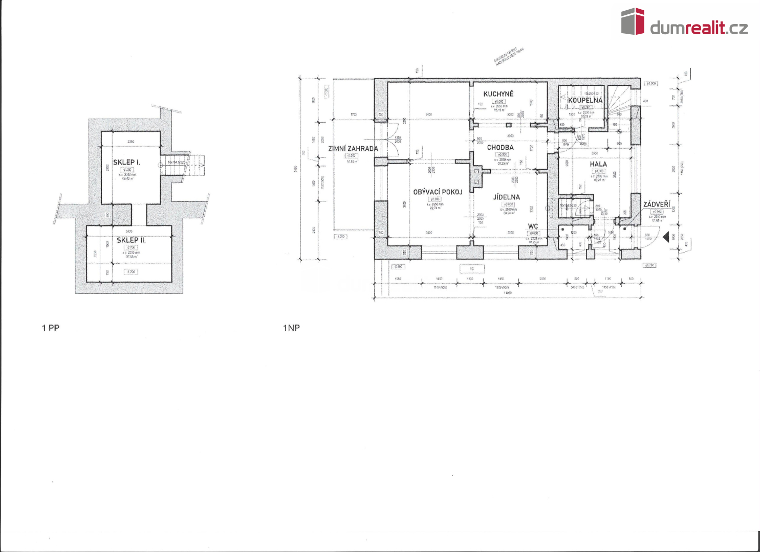
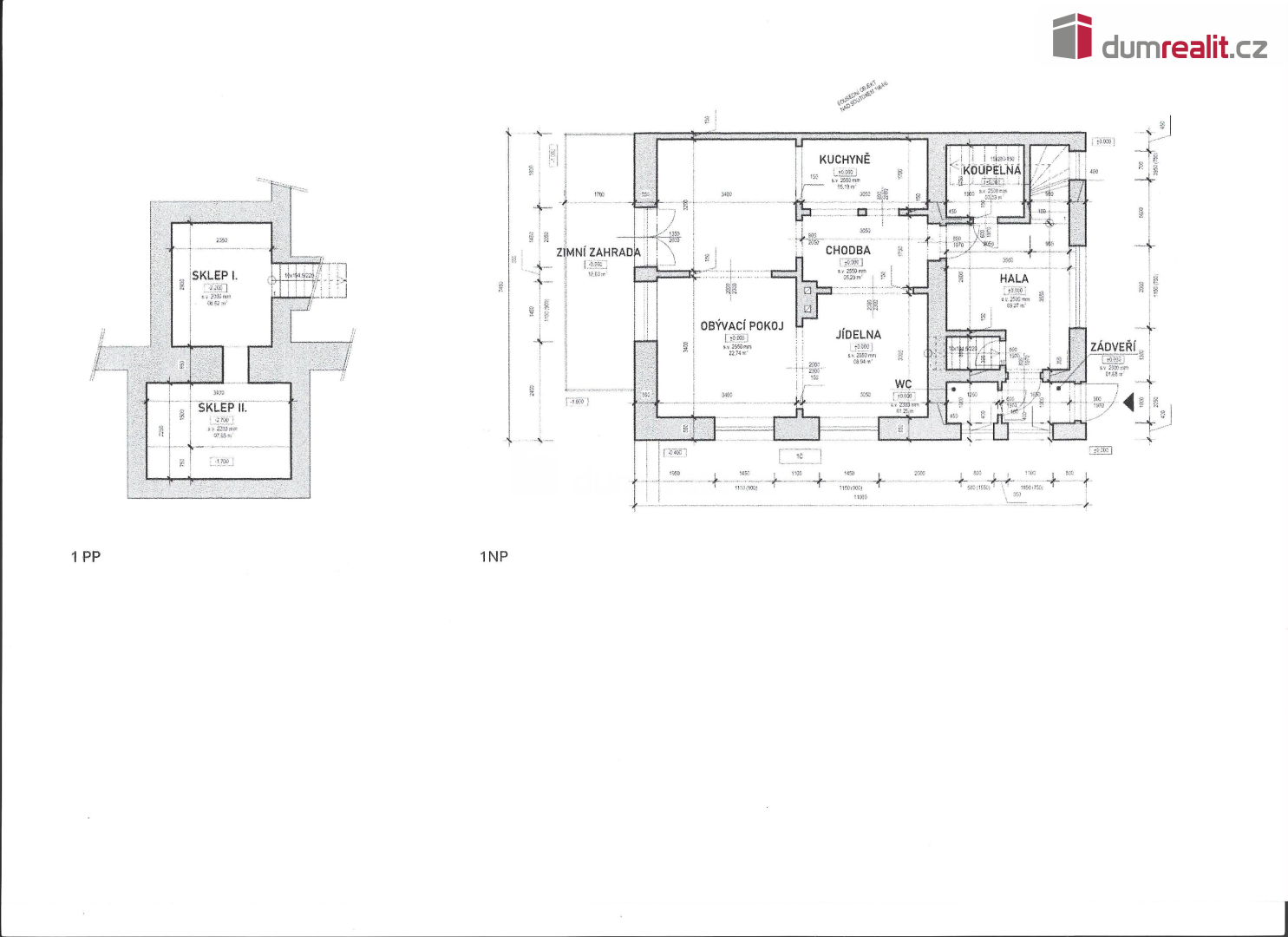
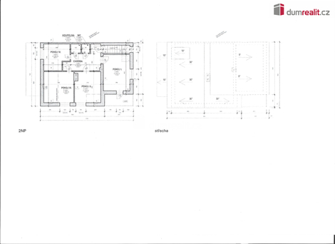
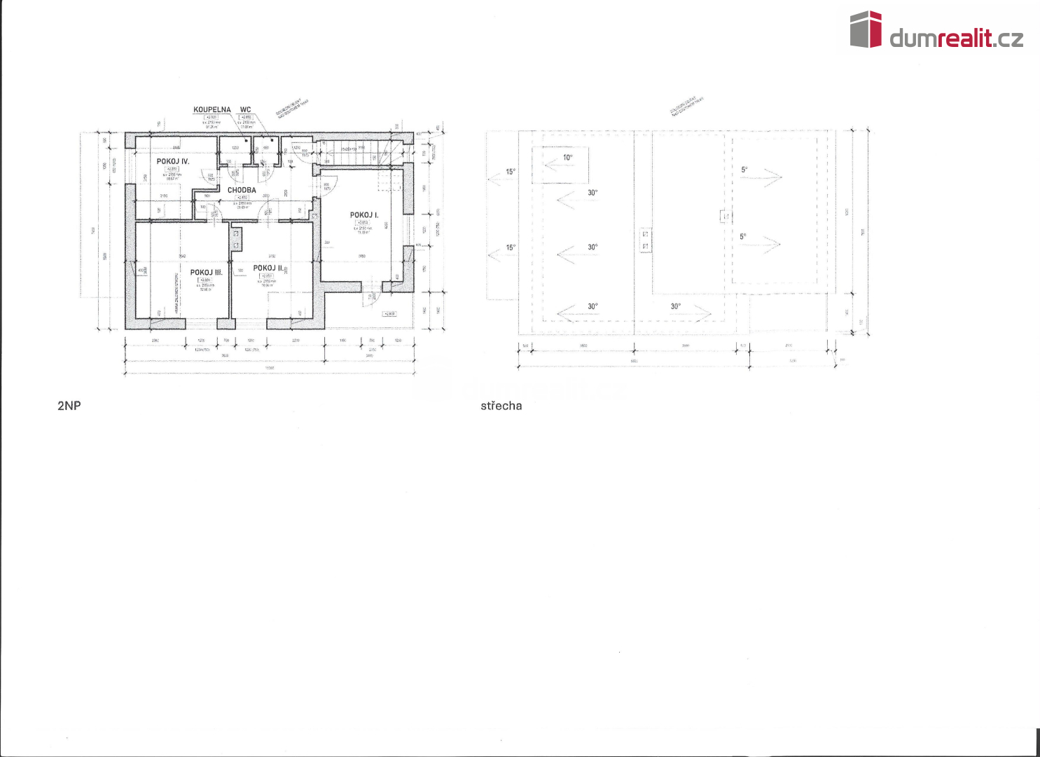
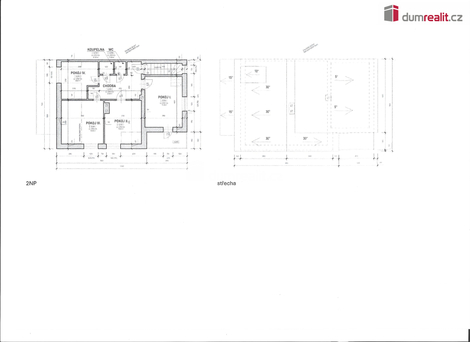
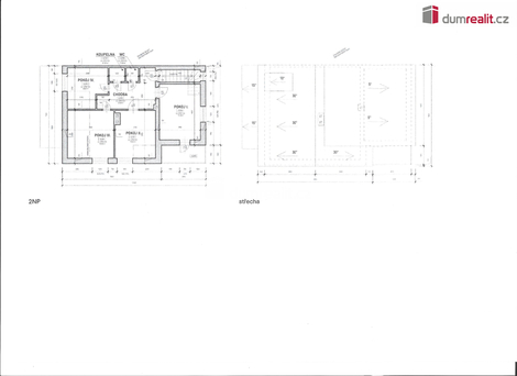
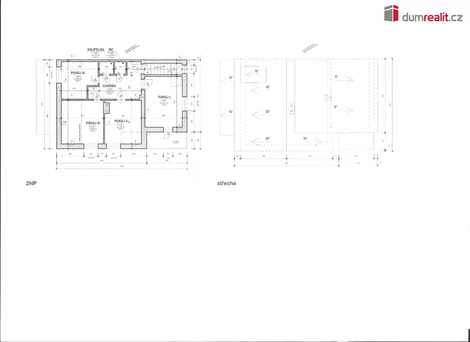
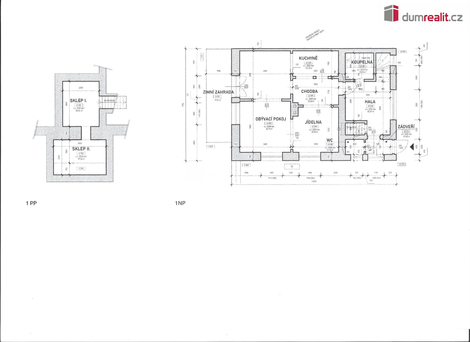
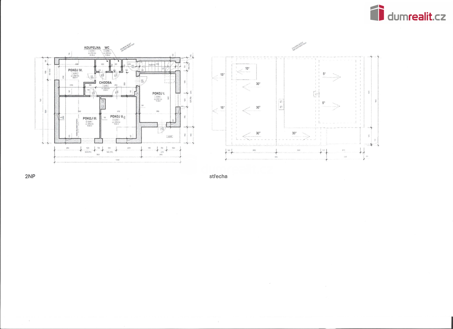
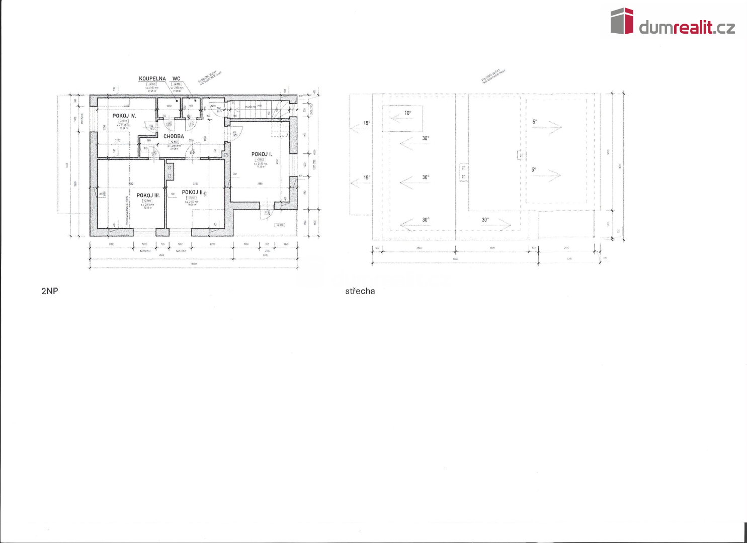
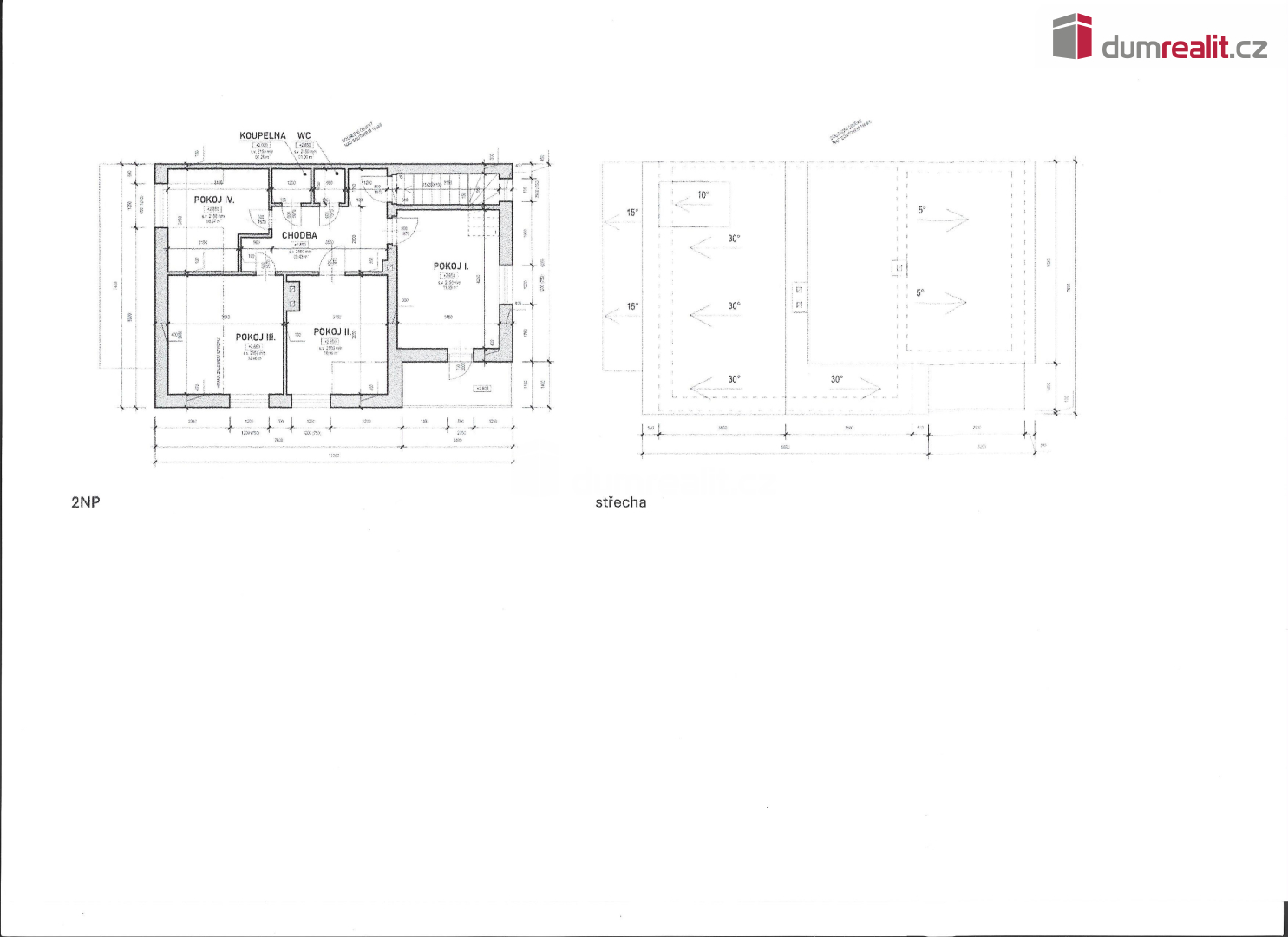
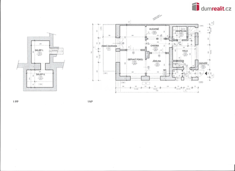
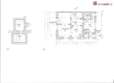
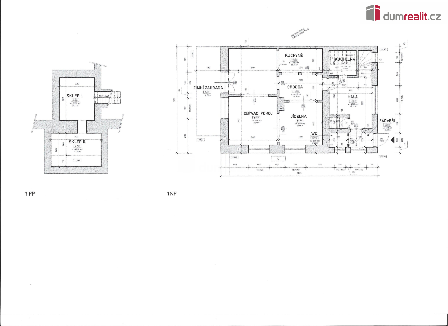
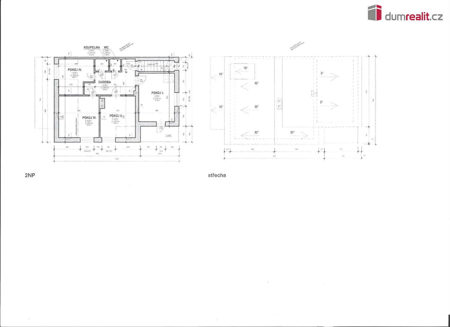
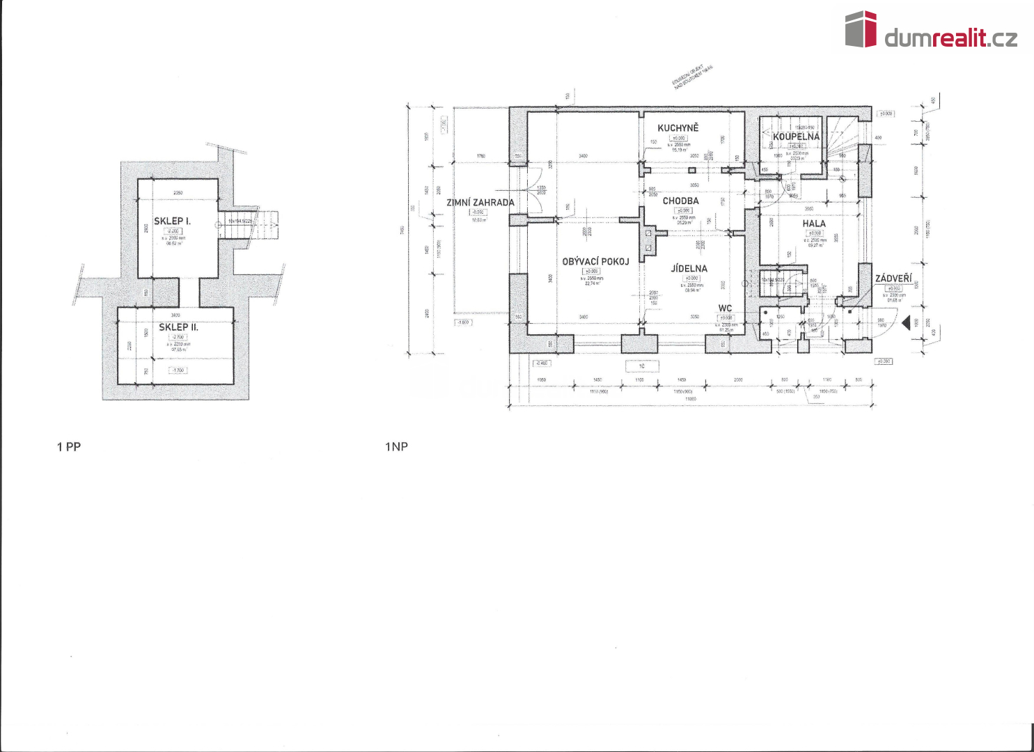
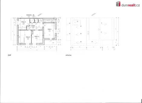
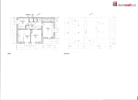
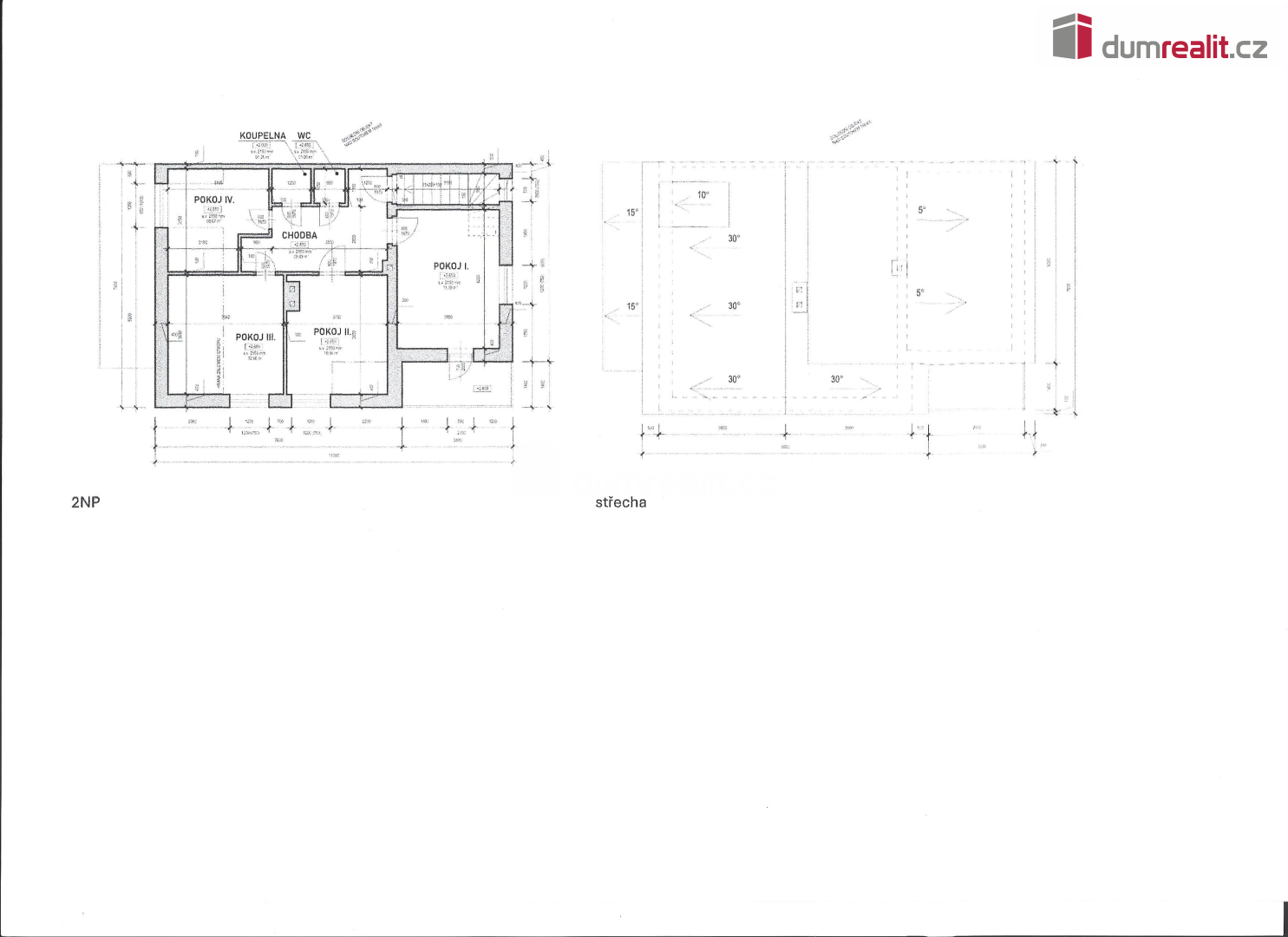
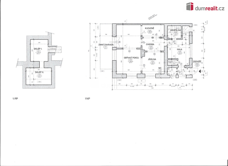
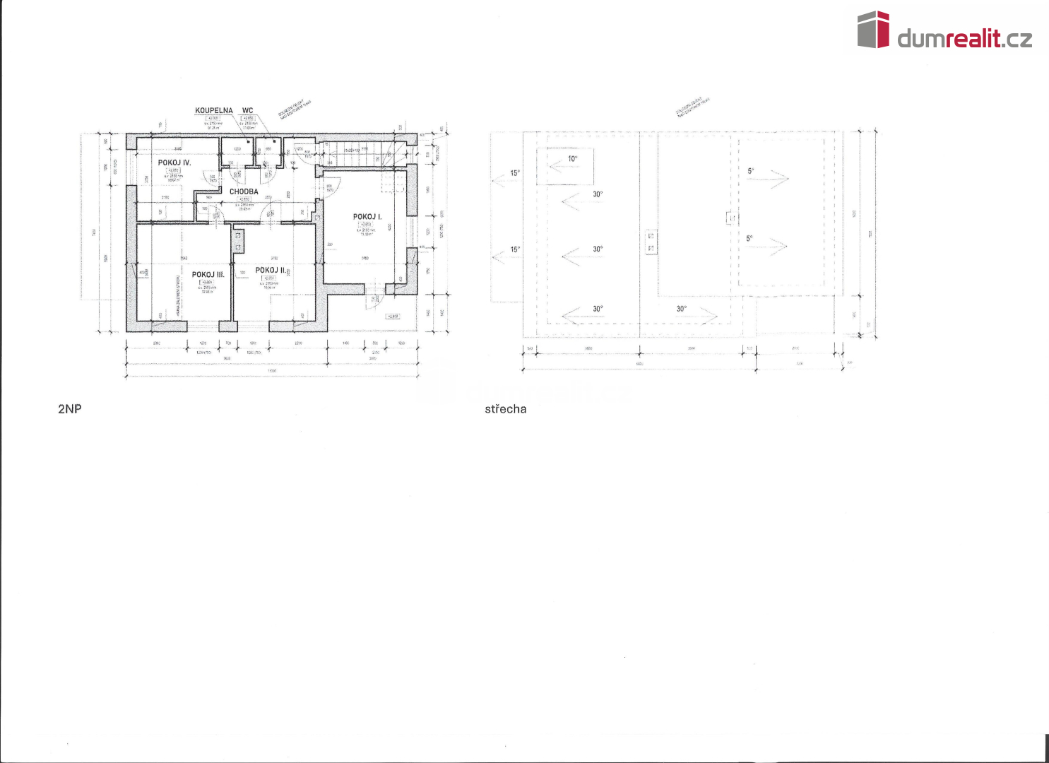
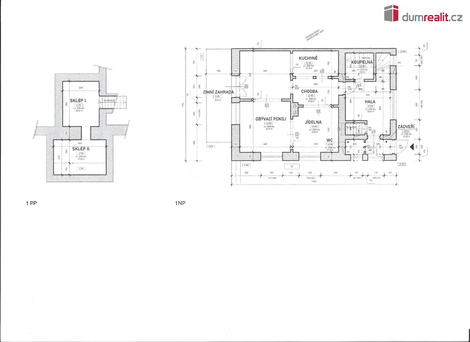
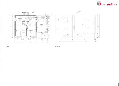
prodej rodinného domu 5+1, 105m2, P4 Modřany, ul. Nad Soutokem, se zahradou 712 m2, garáží 33m2 a bazénem. Jedná se o polovinu dvojdomu. Dům je částečně podsklepený, v 1PP se nachází dva sklepy, dále v 1NP se nachází zádveří, toaleta, hala (se vstupem do sklepa a 2 NP), koupelna, kuchyň, chodba, jídelna a obývací pokoj (se vstupem do zimní zahrady). Ve 2NP se nachází chodba, koupelna, toaleta, čtyři ložnice (jedna se vstupem na terasu). Okna jsou převážně plastová, zasklená izolačním trojsklem. Na garáži je umístěno 54 fotovoltaických panelů o celkovém výkonu 4 kWp. Jednotka FVE je umístěna v 1 PP. Primárním zdrojem vytápění je tepelné čerpadlo vzduch - voda. Venkovní jednotka TČ je umístěna v 1NP. Vnitřní jednotka TČ je umístěna v podzemním podlaží. Sekundárním zdrojem vytápění je krbová vložka umístěna v 1NP. Ohřev TUV je zajištěn zásobníkem TUV v podzemním podlaží. Zásobník TUV je napojen na rozvody TČ a rovněž na 2x solární panel umístěné na střeše domu. Dům s příjemnou dispozicí je připraven k rekonstrukci. Na pozemku se nachází vrtaná studna, která je určena primárně pro zálivku zahrady, dále krytý bazén a skleník. Pozemek je mírně svažitý s jihozápadní orientací, vzrostlými stromy, keři (např. fíkovník, kiwi apod.) množstvím květin a nabízí klid a výjimečný pohled do okolí. Ulice je tichá, lokalita s množstvím zeleně, kompletní sítí služeb a vynikající dopravní dostupností (mj. nájezd na Pražský okruh). Atraktivní místo, doporučuji osobní prohlídku. Ev. číslo: 651587. Energetický štítek: G
Prodej rodinného domu, 110 m2, Praha 6, ul. K Prelátům
Nabízíme k prodeji rodinný dům v klidné části Přední Kopaniny, ideální pro ty, kteří hledají pohodlí i krásný výhled. Dům o dispozici 3+1 a užitné…
Prodej rodinného domu 6+1 v Praze Hloubětín
Nabízíme k prodeji rodinný dům 6+1 celkovou podlahovou plochou 318 m2 v klidné části Hloubětína, ulice V Chaloupkách. Dům z roku 1971 je postaven v…